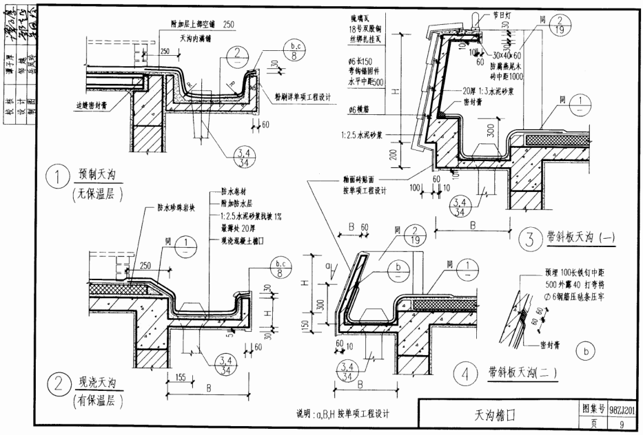
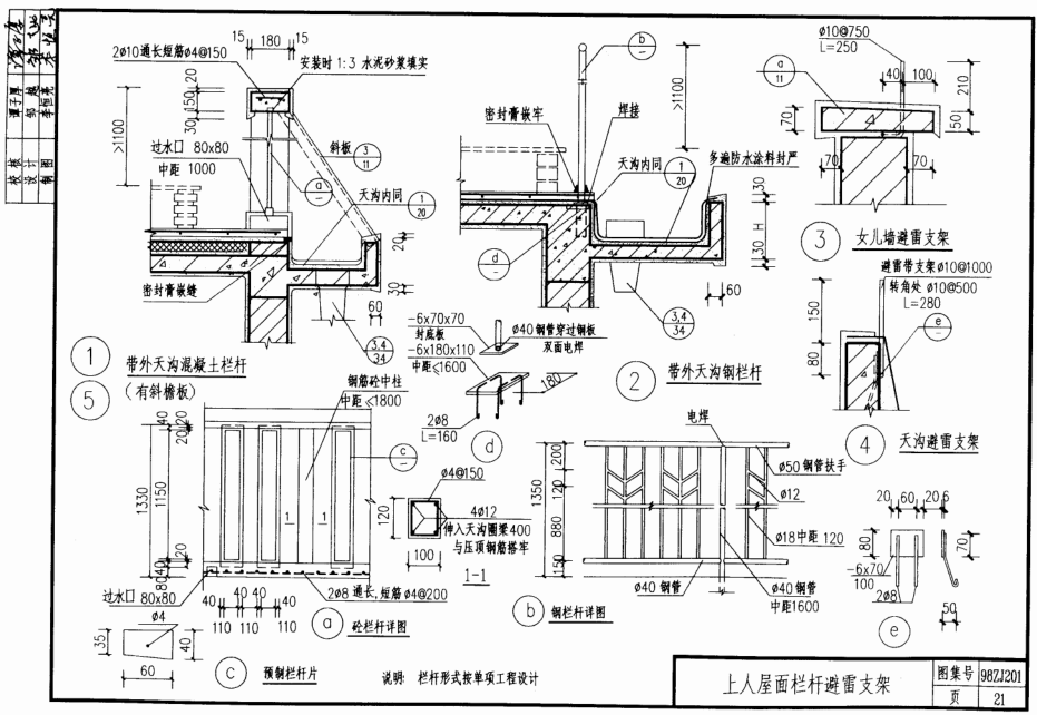
该pdf格式高清无水印版98ZJ201平屋面图集包括有保温隔热、隔汽的防水做法,上人和不上人屋面做法,适用于中南地区防水等级为Ⅰ~Ⅳ级得民用与工业建筑的钢筋砼平屋面。本图集共由40页组成,图集内容完整详细、清晰,适合打印使用,欢迎有需要的朋友进行下载查阅!
温馨提示:
本文档为pdf格式,因此需确保在阅读之前你已经安装了PDF阅读器,如果尚未安装阅读器,建议下载福昕PDF阅读器或其他PDF阅读器,进行安装后阅读。
图集样张





pdf格式免费版98ZJ201平屋面图集相关内容小编就为大家介绍到这里了,更多pdf格式文档资料下载,敬请关注东坡下载站!
- PC官方版
- 安卓官方手机版
- IOS官方手机版















赞一个! 
下载
下载
19dx101-1建筑电气常用数据2019PDF版





10S505柔性接口给水管道支墩图集pdf格式高清
12K404地面辐射供暖系统施工安装图集pdf高清
建筑工程绿色施工规范GB/T 50905-2014pdf电
11BS4排水工程图集(建筑设备施工安装通用图
05SS904民用建筑工程设计常见问题分析及图示
GB50164-2011混凝土质量控制标准规范pdf格式
11SG102-3钢吊车梁系统设计图平面表示方法和