本站小编之前为大家带来了部分建筑标准图集免费下载内容,本节内容中小编将继续为大家推出建筑标准图集免费下载资料,所以接下来大家看到的是关于pdf格式免费版94J623-2Ⅱ型混凝土天窗架建筑构造电子图集,有需要的朋友只需点击本文下方的下载地址即可获得这份混凝土天窗架图集,以下是关于该图集的相关介绍,下面就一起来看看吧!
温馨提示:
本文档为PDF格式文档,因此需确保在阅读之前你已经安装了PDF阅读器,如果尚未安装阅读器,建议下载福昕PDF阅读器或其他PDF阅读器进行安装后阅读。
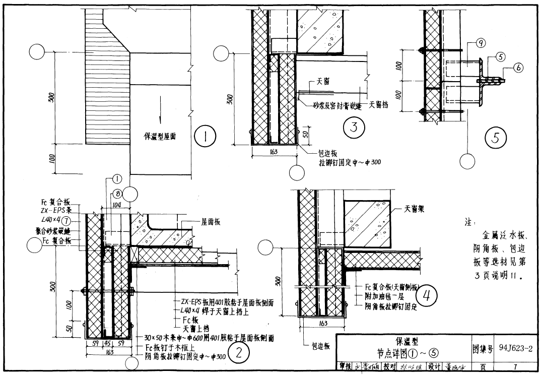
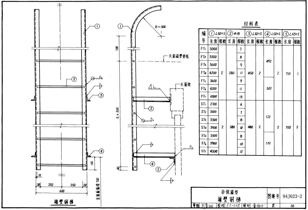
混凝土天窗架图集内容截图





94J623-2Ⅱ型混凝土天窗架建筑构造电子图集(高清版)相关内容小编就为大家介绍到这里了,更多pdf格式文档资料下载,敬请关注东坡下载站!
- PC官方版
- 安卓官方手机版
- IOS官方手机版








19dx101-1建筑电气常用数据2019PDF版





10S505柔性接口给水管道支墩图集pdf格式高清
12K404地面辐射供暖系统施工安装图集pdf高清
建筑工程绿色施工规范GB/T 50905-2014pdf电
11BS4排水工程图集(建筑设备施工安装通用图
05SS904民用建筑工程设计常见问题分析及图示
GB50164-2011混凝土质量控制标准规范pdf格式
11SG102-3钢吊车梁系统设计图平面表示方法和