该pdf格式免费版11J508建筑玻璃应用构造(栏板/隔断/地板/吊顶)高清图集(简称11j508图集)共有120页,图集内容完整,字迹清晰,有需要的朋友只需点击本文下方相应的下载地址即可获得这份11j508图集免费下载资料。
温馨提示:
本文档为pdf格式,因此需确保在阅读之前你已经安装了PDF阅读器,如果尚未安装阅读器,建议下载福昕PDF阅读器或其他PDF阅读器,进行安装后阅读。
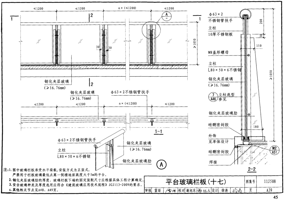
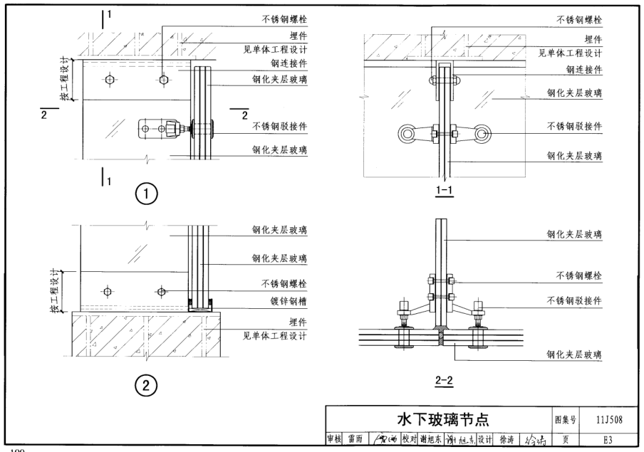
11j508图集内容节选






11j508建筑玻璃应用构造图集相关内容小编就为大家介绍到这里了,查看完整版11j508图集只需点击本文下方相应的下载地址进行下载即可。
- PC官方版
- 安卓官方手机版
- IOS官方手机版














19dx101-1建筑电气常用数据2019PDF版





10S505柔性接口给水管道支墩图集pdf格式高清
12K404地面辐射供暖系统施工安装图集pdf高清
建筑工程绿色施工规范GB/T 50905-2014pdf电
11BS4排水工程图集(建筑设备施工安装通用图
05SS904民用建筑工程设计常见问题分析及图示
GB50164-2011混凝土质量控制标准规范pdf格式
11SG102-3钢吊车梁系统设计图平面表示方法和