98ZJ111变形缝图集一般又被简称为中南标98zj111或是98zj111图集,是中南地区建筑标准图集之一。本节内容小编为大家整理带来的是一份pdf完整版98ZJ111变形缝图集,图集共由31页组成,如果你正在寻求一份98zj111图集免费下载文档或是需要一份pdf完整版中南标98zj111图集,那么就赶紧点击本文相应的下载地址来下载查阅这份中南标98zj111图集吧!该图集完全免费,有需要的朋友可以放心下载使用!
温馨提示:
本文档为pdf格式,因此需确保在阅读之前你已经安装了pdf阅读器,如果尚未安装阅读器,建议下载福昕pdf阅读器或其他PDF阅读器,进行安装后阅读。
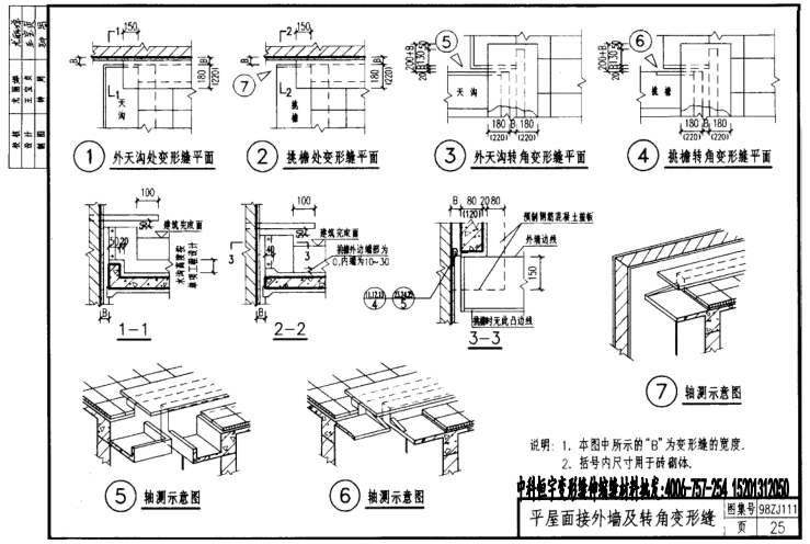
98zj111图集图样






体育教师求职信范文doc格式免费版【求职自荐
企业应用架构模式(中文版经典重读)pdf格式【
99J622-1钢天窗电动开窗机图集pdf格式免费高
电梯安全知识培训课件免费完整版【共30页】
Linux程序设计(中文第4版)epub免费高清完整







GB50016-2014建筑设计防火规范pdf格式免费版
12J201平屋面建筑构造电子版高清图集pdf格式
疯狂android讲义第3版pdf高清扫描版【中文版