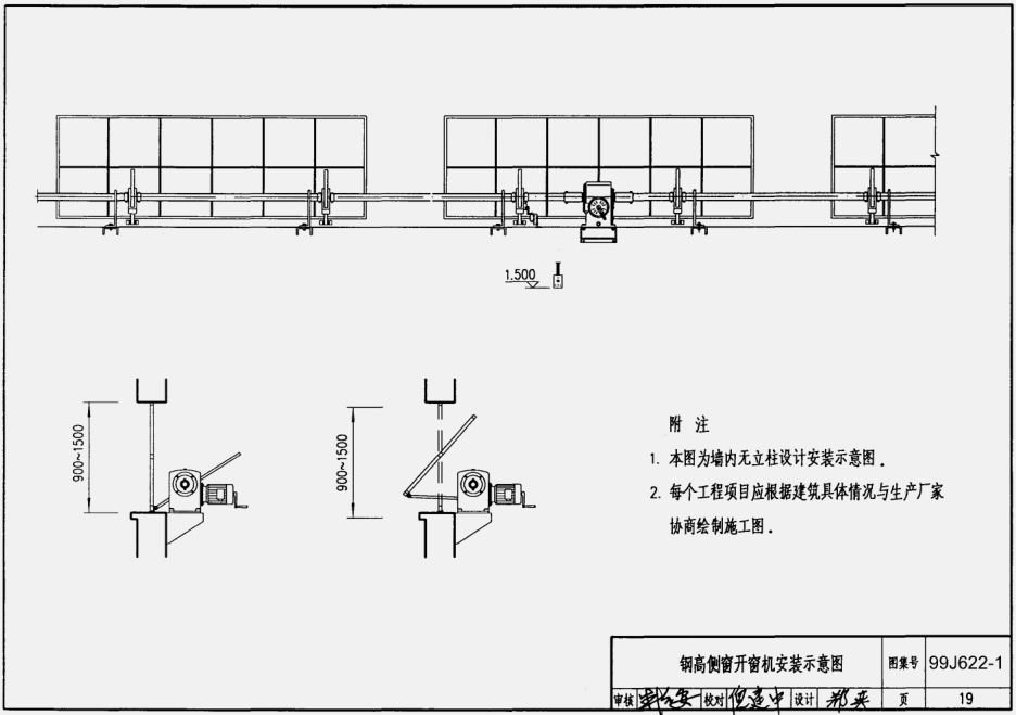
99J622-1钢天窗电动开窗机图集简称为99j6221图集,本图集电动开窗机适用于一般工业厂房的上悬、中悬钢天窗或无内柱厂房的钢高侧窗的启闭。本节内容小编为大家整理带来的这份99j6221图集为pdf格式免费高清版,共有25页,该图集内容完整,字迹清晰,如果你需要一份这样的图集作为工作或学习的参考资料的话,点击本文相应的下载地址进行下载即可!
温馨提示:
本文档为PDF格式文档,因此需确保在阅读之前你已经安装了pdf阅读器,如果尚未安装阅读器,建议下载福昕pdf阅读器或其他PDF阅读器进行安装后阅读。
99J622-1钢天窗电动开窗机图集图样




pdf格式免费版99J622-1钢天窗电动开窗机图集相关内容小编就为大家介绍到这里了,更多pdf格式免费图集资料下载,敬请关注东坡下载站!

施瓦辛格健身全书pdf格式免费电子版【中文完
番茄工作法图解pdf格式【简单易行的时间管理
用户体验要素以用户为中心的产品设计(原书第
编程格调(试读版)pdf格式高清免费版
Go Web编程pdf高清电子版【完整无水印】







GB50016-2014建筑设计防火规范pdf格式免费版
12J201平屋面建筑构造电子版高清图集pdf格式
疯狂android讲义第3版pdf高清扫描版【中文版