95S517排水管道出水口图集简称为95s517图集,该图集详细标明了八字式、一字式、门字式排水管道出水口做法。小编为大家整理带来的这份95S517排水管道出水口图集为pdf格式高清扫描版,图集共有20页,图集字迹清晰,适合打印使用,如果你需要这份图集的话,点击本文相应的下载地址进行下载即可!欢迎有需要的朋友下载使用!
95S517排水管道出水口图集目录节选
目录1
总说明2
八字式管道出水口(砖)3
八字式管道出水口(砖)各部尺寸及工程数量表4
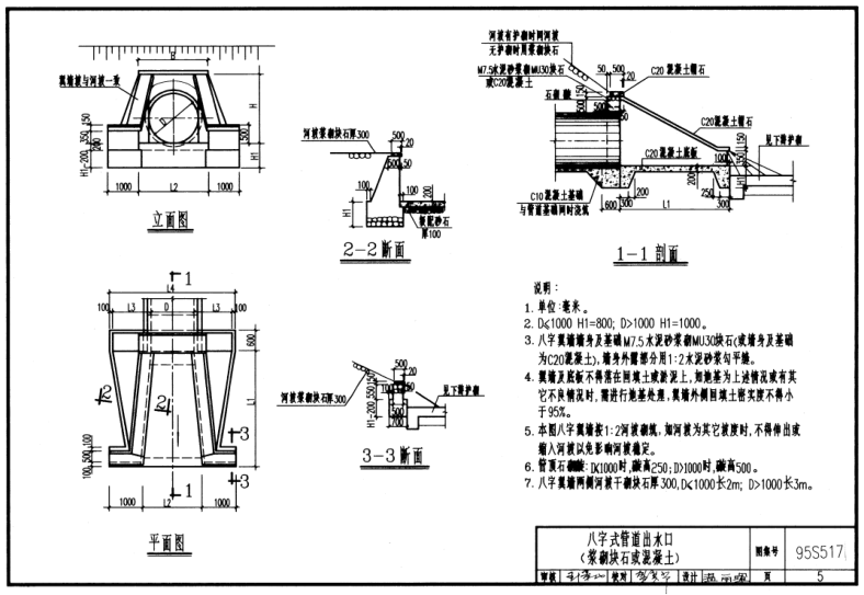
八字式管道出水口(浆砌块石或混凝土)5
八字式管道出水口(浆砌块石或混凝土)各部尺寸及工程数量表6一字式管道出水口(砖)7
一字式管道出水口(砖)各部尺寸表8
一字式管道出水口(砖)工程数量表9
一字式管道出水口(浆砌块石或混凝土)10
一字式管道出水口(浆砌块石或混凝土)各部尺寸表11一字式管道出水口(浆砌块石或混凝土)工程数量表12门字式管道出水口(砖)13
门字式管道出水口(砖)各部尺寸表14
门字式管道出水口(砖)工程数量表15
门字式管道出水口(浆砌块石或混凝土)16
门字式管道出水口(浆砌块石或混凝土)各部尺寸表17门字式管道出水口(浆砌块石或混凝土)工程数量表18八字式、门字式出水口下游护砌(一)19
八字式、门字式出水口下游护砌(二)20
……
95S517排水管道出水口图集内容节选




pdf格式免费版95S517排水管道出水口图集相关内容小编就为大家介绍到这里了,更多pdf格式免费图集资料下载,敬请关注东坡下载站!

94X401-1工业电视系统安装图pdf格式【免费高
97SJ903多层住宅建筑优选设计方案图集pdf格
08K106工业通风排气罩图集pdf完整电子版
清新蓝色简洁设计PPT最新免费版【蓝色背景p
LabVIEW宝典pdf超清完整版







GB50016-2014建筑设计防火规范pdf格式免费版
12J201平屋面建筑构造电子版高清图集pdf格式
疯狂android讲义第3版pdf高清扫描版【中文版