94X401-1工业电视系统安装图是一份适用于工业电视摄像机、监视器等安装的参考图集。在本节内容中东坡小编为大家整理带来的是一份pdf格式免费高清电子版94X401-1工业电视系统安装图(以下简称94x4011图集),该图集由46页组成,欢迎有需要的朋友进行下载查阅!
94x4011图集目录
目录 1
说明 3
图形符号 4
工业电视系统 5
工业电视设备集中供电系统 9
工业电视设备分散供电系统 10
工业电视设备接地系统 11
半导体致冷高温防尘工业电视系统框图 12
风冷防尘型工业电视系统框图 13
摄像机在厂房内小屋顶上安装 14
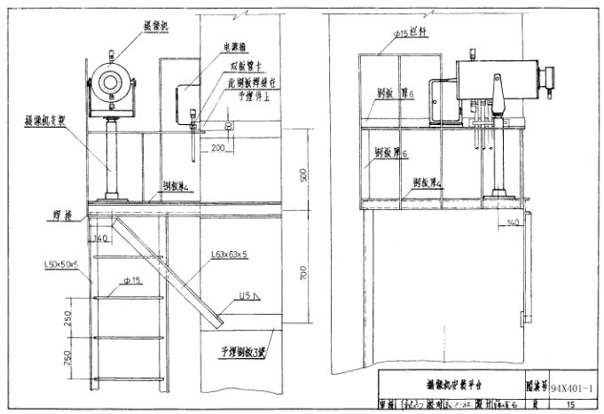
摄像机安装平台 15
摄像机顶装 16
摄像机侧装 17
探头式高温工业电视安装 18
探头式高温工业电视炉壁开孔 19
探头式高温工业电视控制装置安装 20
炉壁式高温工业电视安装(一) 21
炉壁式高温工业电视安装板 22
炉壁式高温工业电视控制装置安装 23
炉壁式高温工业电视安装(二) 24
摄像机支架(一) 25
摄像机支架(二) 26
摄像机支架固定管升降管 27
摄像机支架1号法兰 28
摄像机支架2号法兰 29
摄像机支架紧定螺栓 30
摄像机固定卡 31
摄像机支架(三) 32
摄像机在通信杆上安装(一) 34
摄像机在通信杆上安装(二) 35
监视器吊装支架(一) 36
监视器吊装支架(二) 37
监视器吊架 38
监视器吊架零件 39
钢管敷设方式 40
金属线槽结构示意 41
金属线槽敷设方式 42
角钢接地装置 43
接地板 44
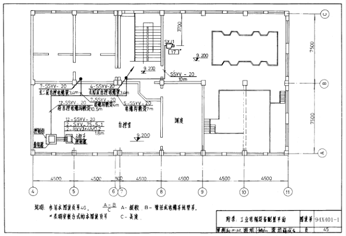
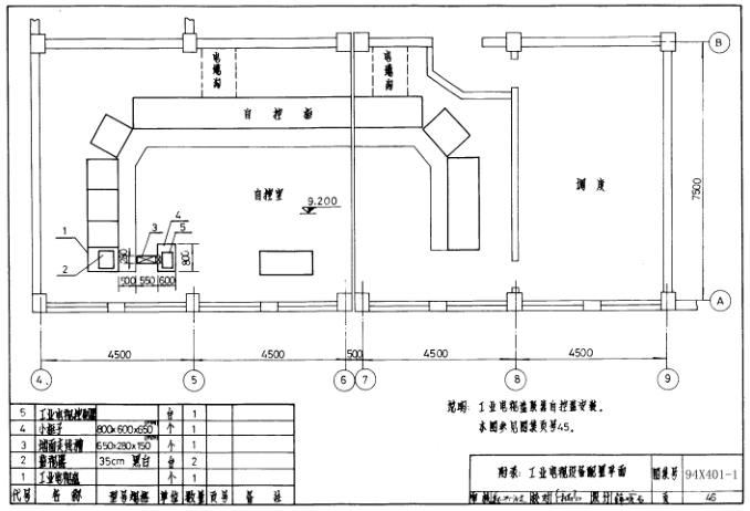
附录:工业电视设备配置平面 45
94x4011图集样张





税收筹划的基本方法免费ppt课件【内含税收筹
从零开始学PHPpdf格式完整影印版
HTML5权威指南pdf格式【中文扫描版】
大话数据结构epub高清电子版【完整免费版】
3DMax效果图制作实例引导教程pdf格式免费版





GB50016-2014建筑设计防火规范pdf格式免费版
05J909/07G120工程做法完整图集(高清无水印
疯狂android讲义第3版pdf高清扫描版【中文版