07FJ03防空地下室防护设备选用图集又被简称为07fj03人防图集或是07fj03图集,本节内容小编为大家整理带来的这份07fj03人防图集为pdf格式超清免费版,图集共由40页组成,图集内容完整,字迹清晰,适合打印使用,如果你需要一份这样的图集的话,那就赶紧点击本文相应的下载地址进行下载查阅吧!该图集为完全免费版,有需要的朋友可以放心下载使用!
07FJ03防空地下室防护设备选用图集相关推荐
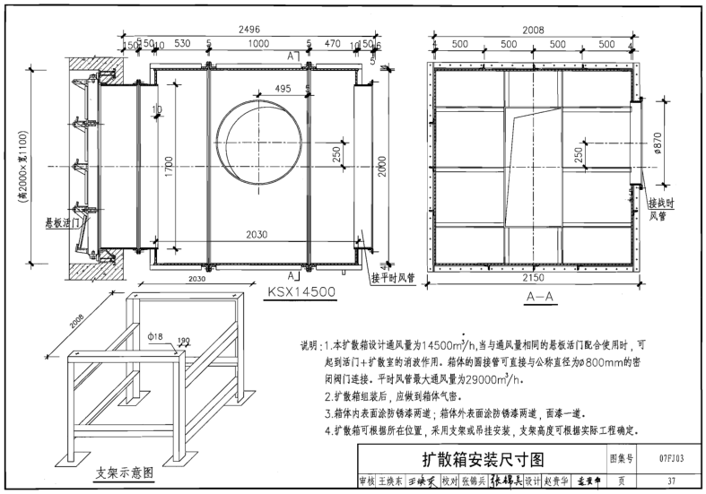
07FJ03防空地下室防护设备选用图集图样




pdf格式免费版07FJ03防空地下室防护设备选用图集相关内容小编就为大家介绍到这里了,更多pdf格式免费图集资料下载,敬请关注东坡下载站!

C++程序设计现代方法(中文版)epub免费版【完
06MS201-3排水检查井图集pdf格式高清免费版
Android软件安全与逆向分析pdf格式高清免费
JavaScript Dom编程艺术(中文第二版)pdf完整
Unity 3D NGUI实战教程pdf超清精简版







GB50016-2014建筑设计防火规范pdf格式免费版
疯狂android讲义第3版pdf高清扫描版【中文版