07FJ05防空地下室移动柴油电站图集是人防系列图集之一,该图集又被简称为07fj05图集。本节内容小编为大家整理带来的这份07fj05图集为pdf格式免费版,该图集内容完整,共有39页,除此之外,图集字迹也十分清晰,如果你需要一份这样的图集作为工作或学习的参考资料,那就赶紧点击本文相应的下载地址来下载这份人防图集吧!
温馨提示:
本文档为PDF格式文档,因此需确保在阅读之前你已经安装了pdf阅读器,如果尚未安装阅读器,建议下载福昕pdf阅读器或其他PDF阅读器进行安装后阅读。
07FJ05防空地下室移动柴油电站图集内容简介
本图集适用于新建、改建、扩建的附建式防空地下室和结合民用建筑易地修建的单建式防空地下室设置的内部移动柴油电站。主要包括1×120kW移动电站(人员掩蔽部)、1×120kW移动电站(汽车库、专业队车辆掩蔽部)。战时为甲类或乙类工程的防护站、人员隐蔽所、物资库、汽车库、生产车间、食品站、人防通道等预制配套设置的内部电站。本图集供设计、审图、监理、质监、施工、工程管理、维护等部门人员使用。
目录
目录1
编制说明2
移动电站设计说明5
移动电站(一)(人员掩蔽工程)8
建筑平面位置示意图8
建筑平面图9
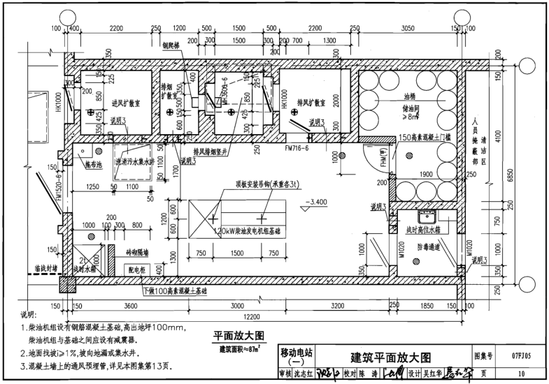
建筑平面放大图10
建筑1-1~2-2剖面图11
建筑3-3~5-5剖面图12
通风平面图13
通风剖面图及材料表14
通风原理图15
风管穿密闭墙做法详图16
手动密闭阀门安装图17
超压排气活门安装图18
给排水平面图19
给排水系统图20
电气配电系统图21
电气动力平面布置图22
电气照明平面布置图23
电气接地平面布置图24
移动电站(二)(防空专业队装备掩蔽部、汽车库工程)25建筑平面位置示意图25
建筑平面图26
建筑平面放大图27
建筑1-1~5-5剖面图28
通风平面图29
通风剖面图及材料表30
通风原理图31
给排水平面图32
给排水系统图33
电气配电系统图34
电气动力平面布置图35
电气照明平面布置图36
电气接地平面布置图37
柴油发电机外形尺寸资料38
07FJ05防空地下室移动柴油电站图集图样




pdf格式免费版07FJ05防空地下室移动柴油电站图集相关内容小编就为大家介绍到这里了,更多pdf格式免费图集资料下载,敬请关注东坡下载站!

98K101-3离心通风机安装图(A式在钢支架上安
05K405新型散热器的选用与安装图集pdf格式免
Google Android开发入门与实战(第二版)pdf格
黄金高胜算交易pdf高清扫描版
SAP2000结构分析简明教程pdf扫描版【完整清







GB50016-2014建筑设计防火规范pdf格式免费版
05J909/07G120工程做法完整图集(高清无水印
疯狂android讲义第3版pdf高清扫描版【中文版