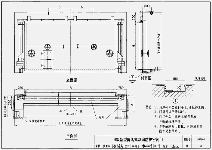
04FJ04防空地下室钢制防护设备选用图集简称为04fj04图集,适用于5、6级人民防空地下室,其它人防工程也可参照选用。本节内容小编为大家整理带来的这份04FJ04防空地下室钢制防护设备选用图集为pdf格式免费版,内容高清无水印。如果你需要一份这样的图集作为参考资料使用,那就赶紧点击本文下方相应的下载地址来进行下载查阅使用吧!
温馨提示:
本文档为PDF格式文档,因此需确保在阅读之前你已经安装了pdf阅读器,如果尚未安装阅读器,建议下载福昕pdf阅读器或其他PDF阅读器进行安装后阅读。
04FJ04防空地下室钢制防护设备选用图集图样




pdf格式免费版04FJ04防空地下室钢制防护设备选用图集相关内容小编就为大家介绍到这里了,更多pdf格式免费图集资料下载,敬请关注东坡下载站!

个人房屋租赁合同书样本pdf格式【免费实用版
Eclipse整合开发工具基础篇pdf格式免费版【
05N4-1通风与空调工程设备分册pdf格式免费版
96K110-3电动机防雨罩图集pdf格式免费版【字
计算机程序的构造和解释(中文原书第二版)pd







GB50016-2014建筑设计防火规范pdf格式免费版
12J201平屋面建筑构造电子版高清图集pdf格式
疯狂android讲义第3版pdf高清扫描版【中文版