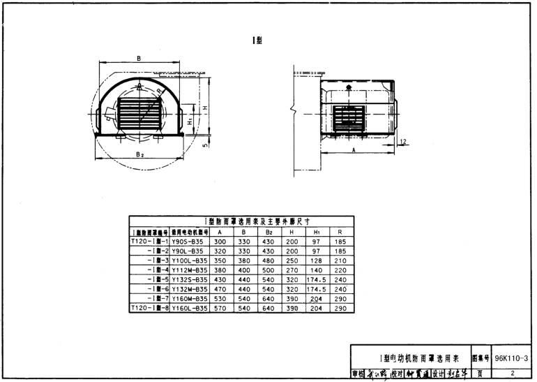
96K110-3电动机防雨罩图集简称为96k1103图集,该图集系通风机用电动机防雨罩制造安装图集,适用于Y90S——Y200LB35(机座带底脚,端盖有凸缘的结构型是型和Y100L-Y315MB3(机座带底脚,端盖无凸缘的结构型式)型电动机。本节内容小编为大家整理带来的是该图集的pdf格式免费版,图集内容完整,字迹清晰,欢迎有需要的朋友下载使用该96k1103图集!
温馨提示:
本文档为PDF格式文档,因此需确保在阅读之前你已经安装了pdf阅读器,如果尚未安装阅读器,建议下载福昕pdf阅读器或其他PDF阅读器进行安装后阅读。
96K110-3电动机防雨罩图集图样




以上是pdf格式免费版96K110-3电动机防雨罩图集相关内容,查阅或下载更多pdf格式免费图集资料,敬请关注东坡下载站!

家用游戏机简史pdf免费清晰版
97K130-1ZP型消声器(ZW型消声弯管)图集pdf格
离散数学及其应用(中文第六版)pdf完整清晰版
硝烟中的Scrum和XP(我们如何实施Scrum)pdf完
05SFJ10人民防空地下室设计规范图示(建筑专







GB50016-2014建筑设计防火规范pdf格式免费版
12J201平屋面建筑构造电子版高清图集pdf格式
疯狂android讲义第3版pdf高清扫描版【中文版