这是一份2003年合订本的03SG520-1~2实腹式钢吊车梁图集,该图集分为03SG520-1实腹式钢吊车梁图集和03SG520-2实腹式钢吊车梁图集两部分,为pdf格式免费高清电子版图集,如果你需要一份这样的图集的话,那就赶紧点击本文下方的下载地址下载查阅这份图集吧!图集内容完整清晰,非常适合打印使用哦!
温馨提示:
本文档为PDF格式文档,因此需确保在阅读之前你已经安装了pdf阅读器,如果尚未安装阅读器,建议下载福昕pdf阅读器或其他PDF阅读器进行安装后阅读。
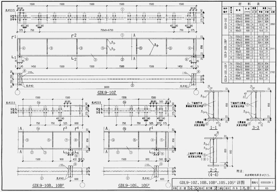
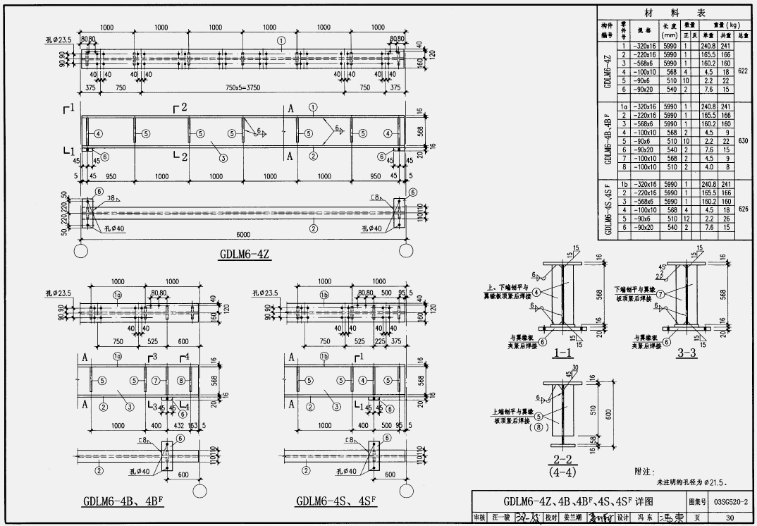
图集样张





pdf格式免费版03SG520-1~2 实腹式钢吊车梁(2003年合订本)图集相关内容小编就为大家介绍到这里了,更多pdf格式免费图集资料下载,敬请关注东坡下载站!

Android软件安全与逆向分析pdf格式高清免费
现代多媒体技术应用教程pdf格式【高清影印版
武汉理工大学学生会副主席工作总结doc格式【
09X700智能建筑弱电工程设计与施工(下册)pd
钢琴的艺术扁平图表ppt模板最新整理版【唯美









GB50016-2014建筑设计防火规范pdf格式免费版
疯狂android讲义第3版pdf高清扫描版【中文版
11G101新版全套图集pdf格式最新整理版【完整
13J811-1建筑设计防火规范图示(超清版)pdf格