该pdf格式高清免费版建筑物抗震构造详图之04G329-5建筑物抗震构造详图(配筋砖砌体楼房)电子版共由16页组成,图集字迹清晰,内容完整,有需要的朋友点击本文下方相应的下载地址即可获得这份pdf格式高清免费版建筑物抗震构造详图,欢迎有需要的朋友进行下载查阅!
温馨提示:
本文档为pdf格式,因此需确保在阅读之前你已经安装了pdf阅读器,如果尚未安装阅读器,建议下载福昕pdf阅读器或其他PDF阅读器,进行安装后阅读。
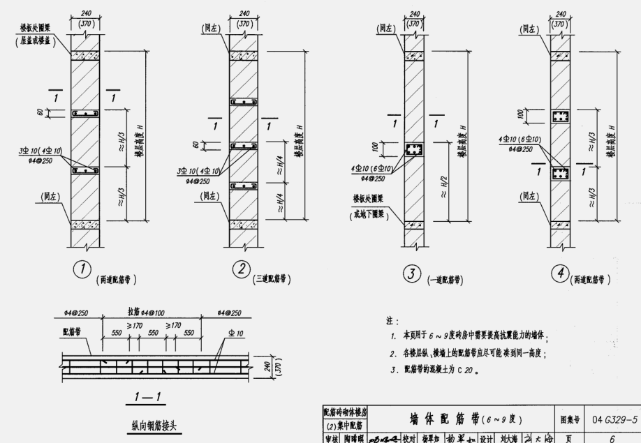
图集样张





04G329-5建筑物抗震构造详图(配筋砖砌体楼房)电子版小编就为大家介绍到这里了,更多pdf格式免费版资料文档下载敬请关注东坡下载站!
相关推荐

单位部门请假条模板doc格式免费版【单位请假
12DX603住宅小区建筑电气设计与施工图集pdf
06K131风管测量孔和检查门图集pdf格式【高清
清华大学教师年度工作总结doc格式【免费版】
Python源码剖析pdf影印版【清晰完整版】



GB50016-2014建筑设计防火规范pdf格式免费版
Spring MVC学习指南pdf高清扫描版
疯狂android讲义第3版pdf高清扫描版【中文版