本节内容小编为大家精选带来的是建筑图集电子版之04G329-1建筑物抗震构造详图 (钢筋混凝土柱单层厂房),该pdf格式高清免费版建筑物抗震构造详图共由69页组成,图集内容完整详细,字迹清晰,欢迎有需要的朋友点击本文下方相应的下载地址进行下载查阅!
温馨提示:
本文档为PDF格式文档,因此需确保在阅读之前你已经安装了pdf阅读器,如果尚未安装阅读器,建议下载福昕pdf阅读器或其他PDF阅读器进行安装后阅读。
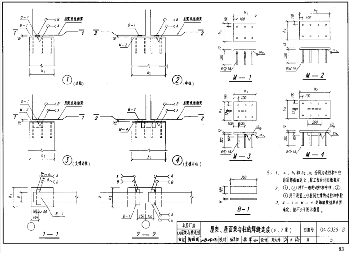
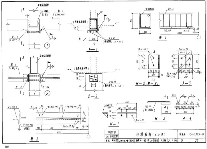
图集样张




pdf格式免费版04G329-1建筑物抗震构造详图 (钢筋混凝土柱单层厂房)相关内容小编就为大家介绍到这里了,更多pdf格式免费图集资料下载,敬请关注东坡下载站!

Perl testing程序高手秘笈pdf完整清晰电子版
03SR113中央液态冷热源环境系统设计施工图集
互联网思维独孤九剑epub格式高清电子版
88J901-2实验室建筑设备(二)高清电子版图集







GB50016-2014建筑设计防火规范pdf格式免费版
Spring MVC学习指南pdf高清扫描版
疯狂android讲义第3版pdf高清扫描版【中文版