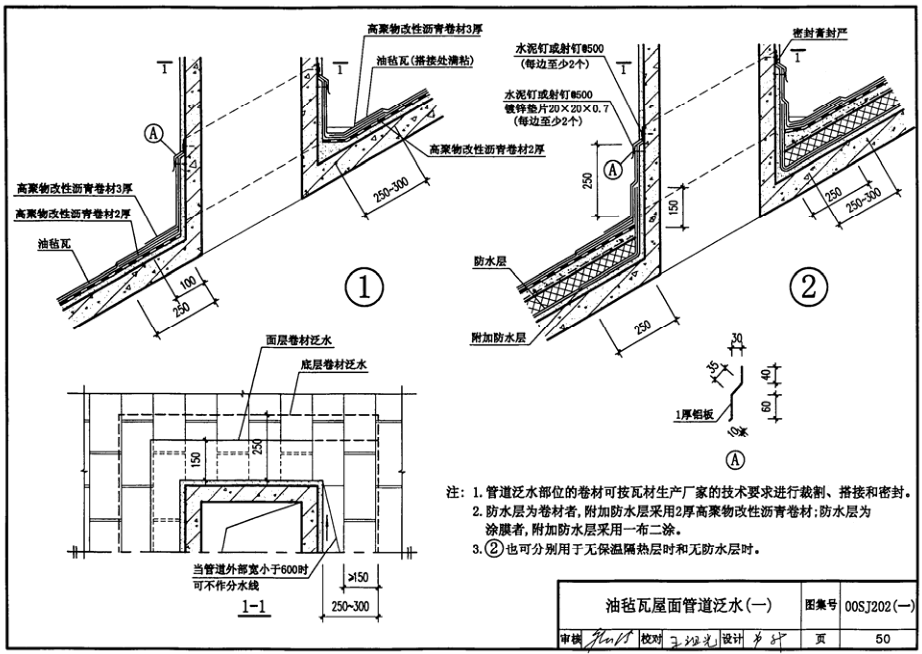
00SJ202(一)坡屋面图集共有35页,该图集适用于屋面坡度为18.5°~60°、防水等级为Ⅱ、Ⅲ级的现浇钢筋混凝土基层的坡屋面建筑。本节内容小编为大家精选带来的这份00SJ202(一)坡屋面图集为pdf格式高清电子免费版,图集内容完整清晰,欢迎有需要的朋友进行下载查阅!
温馨提示:
本文档为PDF格式文档,因此需确保在阅读之前你已经安装了pdf阅读器,如果尚未安装阅读器,建议下载福昕pdf阅读器或其他PDF阅读器进行安装后阅读。
图集样张





pdf格式免费版00SJ202(一)坡屋面高清电子版图集相关内容小编就为大家介绍到这里了,更多pdf格式免费图集资料下载,敬请关注东坡下载站!

火灾逃生手册(电子版)pdf格式免费版
C语言学习系统v4.1 中文安装版
01R413室外热力管道安装(架空敷设)图集pdf格
05SDX006民用建筑工程设计常见问题分析及图
LabVIEW宝典pdf超清完整版







GB50016-2014建筑设计防火规范pdf格式免费版
05J909/07G120工程做法完整图集(高清无水印
Spring MVC学习指南pdf高清扫描版
疯狂android讲义第3版pdf高清扫描版【中文版