这是一份27页pdf格式免费版02S501-2双层井盖高清电子图集,图集内容详细,字迹清晰,有需要的朋友点击本文下方相应的下载地址即可下载查阅这份02s5012双层井盖图集。
温馨提示:
本文档为pdf格式,因此需确保在阅读之前你已经安装了pdf阅读器,如果尚未安装阅读器,建议下载福昕pdf阅读器或其他PDF阅读器,进行安装后阅读。
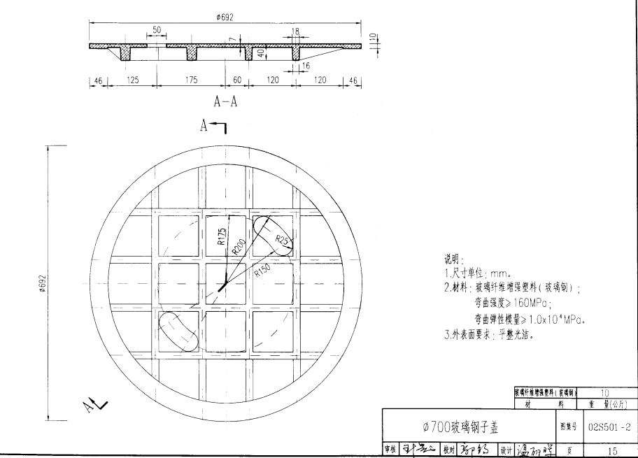
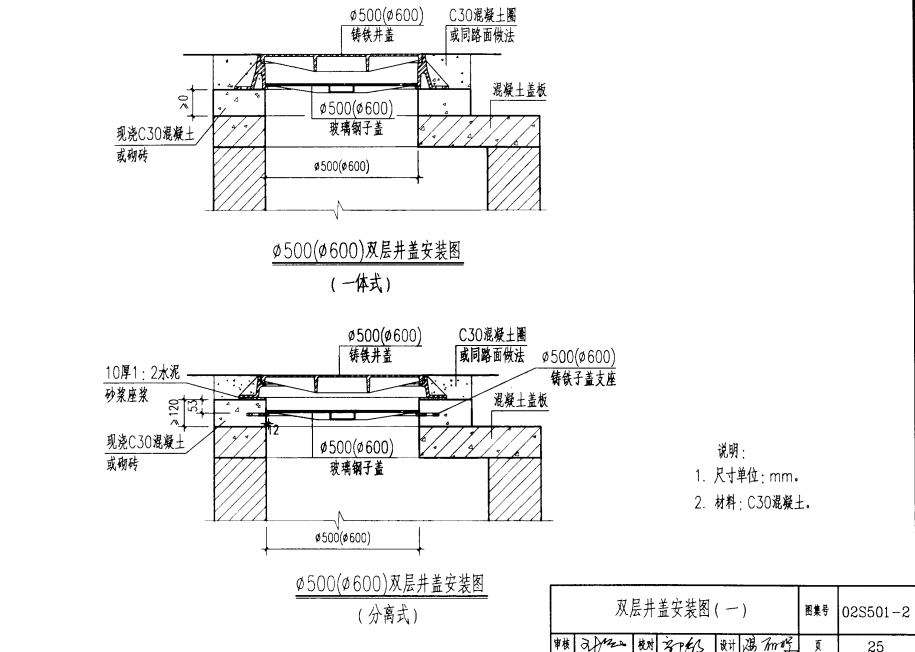
02S501-2双层井盖高清电子版图集内容截图




02S501-2双层井盖高清电子版图集相关内容小编就为大家介绍到这里了,更多pdf格式免费图集资料下载,敬请关注东坡下载站!

2015上海市房屋租赁合同范本免费版【word打
C程序设计语言(第二版)pdf格式超清版【特别
零基础学算法pdf【高清完整免费版】
96S406建筑排水用硬聚氯乙烯(PVC-U)管道安装
PHP中文指南(CHM)phpzhongwen





GB50016-2014建筑设计防火规范pdf格式免费版
05J909/07G120工程做法完整图集(高清无水印
Spring MVC学习指南pdf高清扫描版
疯狂android讲义第3版pdf高清扫描版【中文版