11ZJ903建筑外遮阳图集是一份适用于中南地区新建、扩建及既有建筑改造的民用、工业建筑的参考图集,该图集为中南标准图集之一。本节内容东坡小编为大家推荐带来的是一份pdf格式高清电子版中南标11ZJ903建筑外遮阳图集,该图集共由71页组成,如果你需要这份图集作为参考资料的话点击本文相应的下载地址进行下载即可!
中南标11zj903图集目录
说明
遮阳系数计算
混凝土遮阳构造(H)
卷帘遮阳系统(J)
织物卷帘遮阳系统(Z)
百叶帘遮阳系统(B)
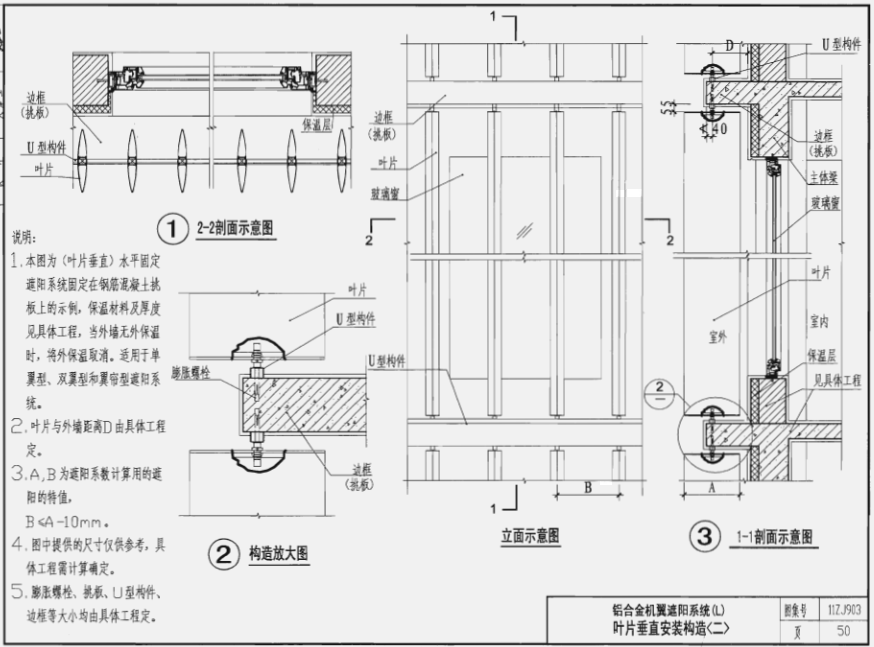
铝合金机翼遮阳系统(L)
铝合金格栅遮阳系统(G)
中南标11zj903图集样张




- PC官方版
- 安卓官方手机版
- IOS官方手机版













18CJ87-1图集(采光、通风、消防排烟天窗)pdf免费版





15j403-1 楼梯 栏杆 栏板(一)pdf【高清电子
10S505柔性接口给水管道支墩图集pdf格式高清
12K404地面辐射供暖系统施工安装图集pdf高清
建筑工程绿色施工规范GB/T 50905-2014pdf电
11BS4排水工程图集(建筑设备施工安装通用图
17j925-1压型钢板图集pdf高清免费版
05SS904民用建筑工程设计常见问题分析及图示