05CG02钢结构设计图实例—多、高层房屋图集一般被简称为05cg02图集,该图集中包含有多、高层钢结构房屋的设计图实例。本节内容东坡小编为大家整理带来的是一份由32页组成的05cg02图集,以下有关于该图集的相关介绍,如果你需要这份pdf格式免费高清电子版05cg02图集的话,那就赶紧点击本文相应的下载地址来进行下载吧!
05cg02图集目录
目录 编制说明1
效果图2
结施-1:结构图纸目录3
结施-3:钢结构设计说明4
结施-4:焊接和高强度螺拴连接形式5
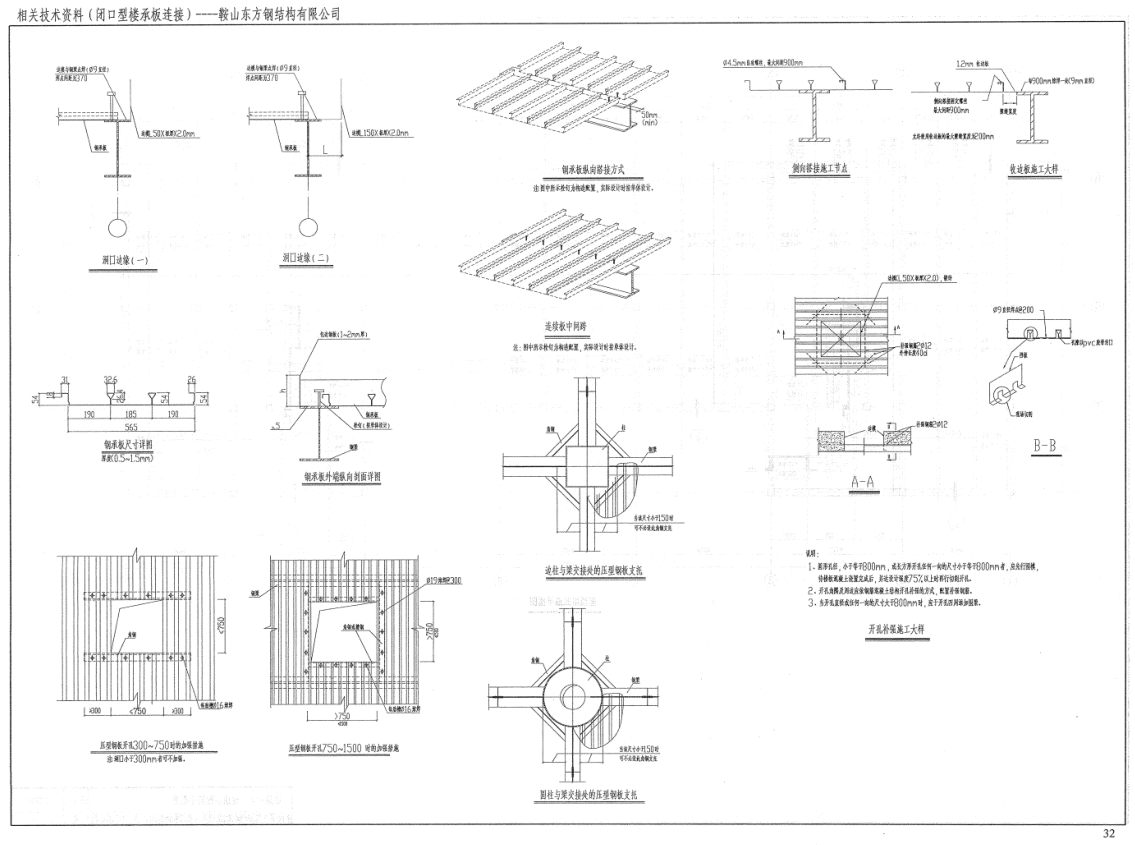
结施-5:钢结构节点详图(一)6
结施-6:钢结构节点详图(二)7
结施-10:地下一层结构平面图8
结施-15:二层钢结构平面布置图9
结施-16:三层钢结构平面布置图10
结施-17:四层钢结构平面布置图11
结施-18:五层钢结构平面布置图12
结施-19:六层钢结构平面布置图13
结施-20:七层钢结构平面布置图14
结施-21:八层钢结构平面布置图15
结施-22:九层钢结构平面布置图16
结施-23:十层钢结构平面布置图17
结施-24:屋顶层钢结构平面布置图18
结施-25:框架立面图(一)19
结施-26:框架立面图(二)20
结施-34:二层钢梁留洞图21
结施-35:二层配筋平面图22
结施-36:三层配筋平面图23
结施-37:四层配筋平面图24
结施-38:五层配筋平面图25
结施-39:六层配筋平面图26
结施-40:七层配筋平面图27
结施-41:八层配筋平面图28
结施-42:九层配筋平面图29
结施-43:十层配筋平面图30
结施-44:屋顶层配筋平面图31
05cg02图集样张




- PC官方版
- 安卓官方手机版
- IOS官方手机版












18CJ87-1图集(采光、通风、消防排烟天窗)pdf免费版





15j403-1 楼梯 栏杆 栏板(一)pdf【高清电子
10S505柔性接口给水管道支墩图集pdf格式高清
12K404地面辐射供暖系统施工安装图集pdf高清
建筑工程绿色施工规范GB/T 50905-2014pdf电
11BS4排水工程图集(建筑设备施工安装通用图
17j925-1压型钢板图集pdf高清免费版