98S176消防增压稳压设备选用与安装图集简称为98s176图集,该图集适用于多层和高层建筑工程有增压稳压设施要求的消火拴给水系统及湿式喷水灭火系统等各类消防给水系统。原98S176改号98S205。本节内容小编为大家整理带来的是一份pdf格式清晰电子版98s176图集,图集共由23页组成,如果你需要一份98s176图集,那就赶紧点击本文相应的下载地址来进行下载吧!
温馨提示:
本文档为PDF格式文档,因此需确保在阅读之前你已经安装了PDF阅读器,如果尚未安装阅读器,建议下载福昕PDF阅读器或其他PDF阅读器进行安装后阅读。
98s176图集相关推荐
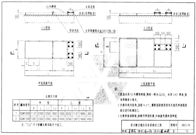
98s176图集样张




- PC官方版
- 安卓官方手机版
- IOS官方手机版



















15j403-1 楼梯 栏杆 栏板(一)pdf【高清电子
10S505柔性接口给水管道支墩图集pdf格式高清
12K404地面辐射供暖系统施工安装图集pdf高清
建筑工程绿色施工规范GB/T 50905-2014pdf电
11BS4排水工程图集(建筑设备施工安装通用图
17j925-1压型钢板图集pdf高清免费版