11ZJ411阳台/外廊栏杆图集,一般被简称为11zj411图集或是中南标图集11zj411。小编在此为大家推荐带来的这份中南标图集11zj411由51页组成,图集内容完整,字迹清晰,是一份非常不错的参考图集资料。关于该图集的适用范围及设计内容,以下有相关介绍,希望对大家有所帮助!
11zj411图集简介
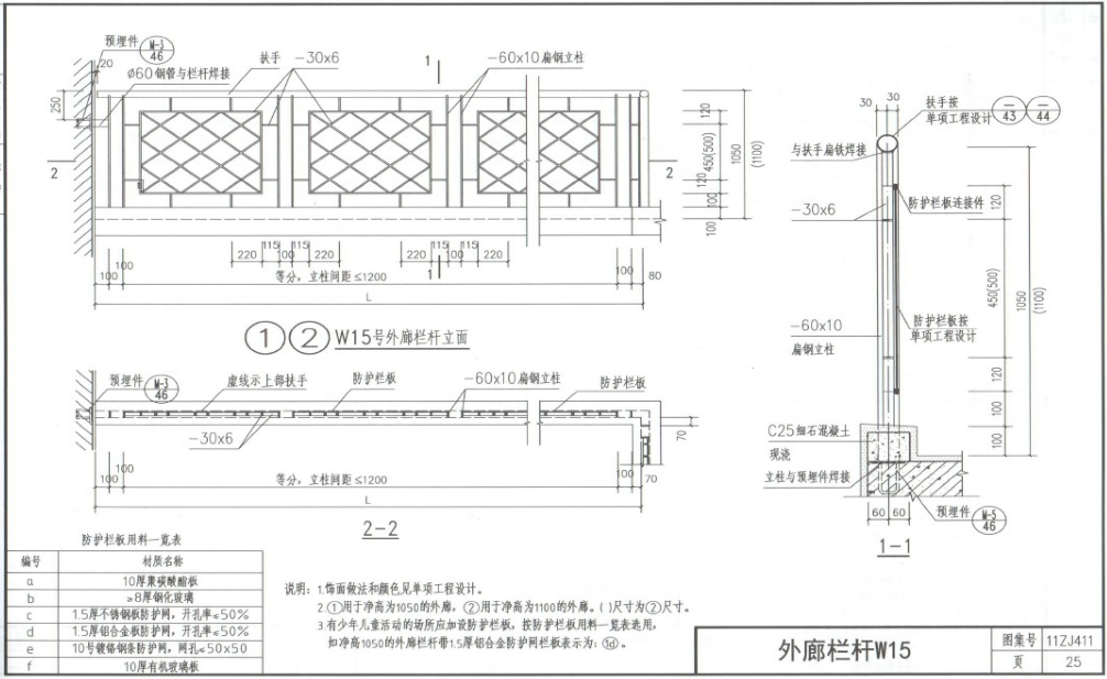
1.适用范围
1.1本图集适用于一般民用建筑和工业辅助建筑的阳台、外廊栏杆;也可用于中庭及回廊栏杆。
1.2本图集带坐凳栏杆仅适用于室内外高差不大于450mm。用于临水建筑时,应符合《公园设计规范》CJJ48-92相关规定。
1.3本图集适用于抗震设防烈度为8度以下地区,当用于8度区时,不应采用砖砌栏板。
2.设计内容
本图集的内容分为两个部分:阳台栏杆、栏板和外廊栏杆、栏板。
……
11zj411图集样张





- PC官方版
- 安卓官方手机版
- IOS官方手机版













18CJ87-1图集(采光、通风、消防排烟天窗)pdf免费版





15j403-1 楼梯 栏杆 栏板(一)pdf【高清电子
10S505柔性接口给水管道支墩图集pdf格式高清
12K404地面辐射供暖系统施工安装图集pdf高清
建筑工程绿色施工规范GB/T 50905-2014pdf电
11BS4排水工程图集(建筑设备施工安装通用图
17j925-1压型钢板图集pdf高清免费版