98ZJ513住宅厨房卫生间设施图集,一般被简称为98zj513图集或是中南标98zj513。该图集具有一定的实用性和价值,是一份应用范围较为广泛的图集,在本节内容中小编为大家推荐带来的是一份pdf格式免费电子版且内容完整清晰的98zj513图集,该图集共由20页组成,关于该图集的适用范围及设计内容等,以下有相关介绍,希望对大家有所帮助!
98zj513图集内容简介
一、适用范围
(一)本图集适用于住宅建筑的厨房和卫生间,其他居住性建筑可参照使用。
(二)本图集与中南地区通用建筑标准设计98ZJ512《公用厨房卫生间设施》、98ZJ001 《建筑构造用料做法》、98ZJ501《内墙装修及配件》配合使用。
二、设计内容
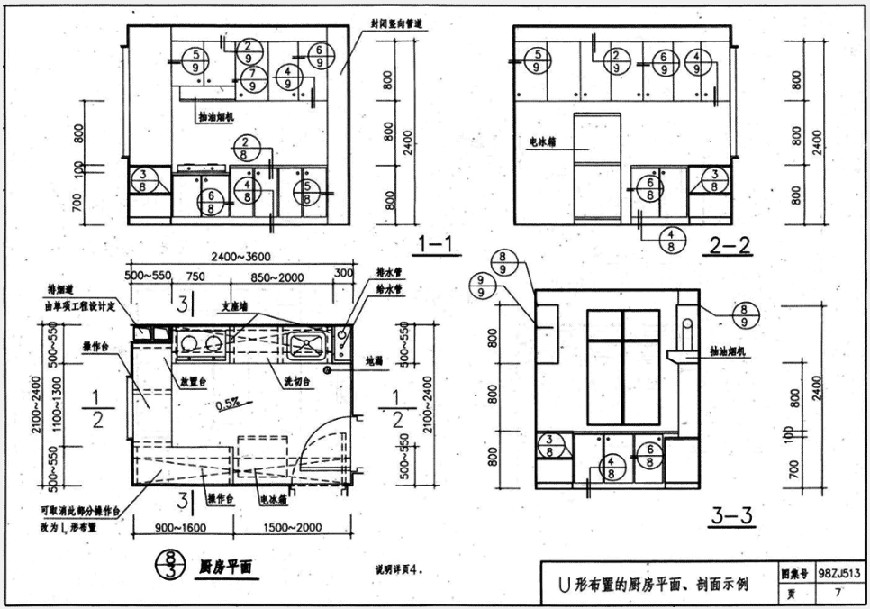
(一)住宅厨房、卫生间的布置及设施详图。
(二)厨房、卫生间各类设施的安装固定方式。
(三)提供厨房、卫生间设施基本参数尺寸。
……
98zj513图集样张




- PC官方版
- 安卓官方手机版
- IOS官方手机版














18CJ87-1图集(采光、通风、消防排烟天窗)pdf免费版





15j403-1 楼梯 栏杆 栏板(一)pdf【高清电子
10S505柔性接口给水管道支墩图集pdf格式高清
12K404地面辐射供暖系统施工安装图集pdf高清
建筑工程绿色施工规范GB/T 50905-2014pdf电
11BS4排水工程图集(建筑设备施工安装通用图
17j925-1压型钢板图集pdf高清免费版