97D302-2低压母线分段断路器二次接线图集由原97D374改号而来,该图集的主要内容为进线柜、母联柜二次接线图,一般被简称为97d3022图集,本节内容小编为大家整理带来的是一份pdf格式超清电子版97d3022图集,图集共由71页组成,如果你需要一份这样的97d3022图集免费下载文档的话,那就赶紧点击本文相应的下载地址来进行下载吧!
97d3022图集目录
目录1
说明3
索引表5
DW18(AE-S)型断路器端子图(一)6
DW18(AE-S)型断路器端子图(二)7
DW18(AE-S)型断路器端子图(三)8
DW914(AH)型断路器端子图(一)9
DW914(AH)型断路器端子图(二)10
DW17B(ME)型断路器端子图11
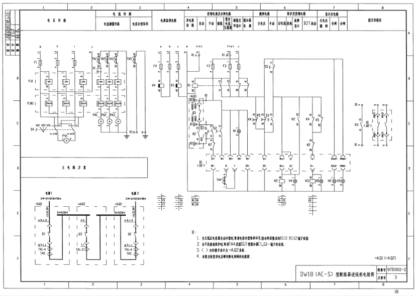
DW18(AE-S)型断路器进线柜电路图12
设备元件表及端子接线网格表13
DW18(AE-S)型断路器进线柜电路图14
设备元件表及端子接线网格表15
DW18(AE-S)型断路器分段柜电路图16
设备元件表及端子接线网格表17
DW18(AE-S)型断路器进线柜电路图18
设备元件表及端子接线网格表19
DW18(AE-S)型断路器进线柜电路图20
设备元件表及端子接线网格表21
DW18(AE-S)型断路器分段柜电路图22
设备元件表及端子接线网格表23
DW914(AH)型断路器进线柜电路图24
设备元件表及端子接线网格表25
DW914(AH)型断路器进线柜电路图26
设备元件表及端子接线网格表27
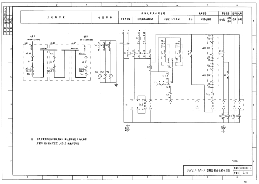
DW914(AH)型断路器分段柜电路图28
设备元件表及端子接线网格表29
DW914(AH)型断路器进线柜电路图30
设备元件表及端子接线网格表31
DW914(AH)型断路器进线柜电路图32
设备元件表及端子接线网格表33
DW914(AH)型断路器分段柜电路图34
设备元件表及端子接线网格表35
DW914(AH)型断路器进线柜电路图36
设备元件表及端子接线网格表37
DW914(AH)型断路器进线柜电路图38
设备元件表及端子接线网格表39
DW914(AH)型断路器分段柜电路图40
设备元件表及端子接线网格表41
DW914(AH)型断路器进线柜电路图42
设备元件表及端子接线网格表43
DW914(AH)型断路器进线柜电路图44
设备元件表及端子接线网格表45
DW914(AH)型断路器分段柜电路图46
设备元件表及端子接线网格表47
DW17B(ME)型断路器进线柜电路图48
设备元件表及端子接线网格表49
DW17B(ME)型断路器进线柜电路图50
设备元件表及端子接线网格表51
DW17B(ME)型断路器分段柜电路图52
设备元件表及端子接线网格表53
DW17B(ME)型断路器进线柜电路图54
设备元件表及端子接线网格表55
DW17B(ME)型断路器进线柜电路图56
设备元件表及端子接线网格表57
DW17B(ME)型断路器母联柜电路图58
设备元件表及端子接线网格表59
DW17B(ME)型断路器进线柜电路图60
设备元件表及端子接线网格表61
DW17B(ME)型断路器进线柜电路图62
设备元件表及端子接线网格表63
DW17B(ME)型断路器母联柜电路图64
设备元件表及端子接线网格表65
DW17B(ME)型断路器进线柜电路图66
设备元件表及端子接线网格表67
DW17B(ME)型断路器进线柜电路图68
设备元件表及端子接线网格表69
DW17B(ME)型断路器母联柜电路图70
设备元件表及端子接线网格表71
97d3022图集样张





- PC官方版
- 安卓官方手机版
- IOS官方手机版














18CJ87-1图集(采光、通风、消防排烟天窗)pdf免费版





15j403-1 楼梯 栏杆 栏板(一)pdf【高清电子
10S505柔性接口给水管道支墩图集pdf格式高清
12K404地面辐射供暖系统施工安装图集pdf高清
建筑工程绿色施工规范GB/T 50905-2014pdf电
11BS4排水工程图集(建筑设备施工安装通用图
17j925-1压型钢板图集pdf高清免费版
05SS904民用建筑工程设计常见问题分析及图示