本节内容小编为大家精选带来的是pdf格式高清免费版陕09J15建筑变形缝图集(简称09j15图集或陕09J15图集),如果你正在寻求一份这样的“陕09j15图集免费下载”资料,那就赶紧点击本文下方的下载地址进行下载查阅吧!
温馨提示:
本文档为PDF格式文档,因此需确保在阅读之前你已经安装了pdf阅读器,如果尚未安装阅读器,建议下载福昕pdf阅读器或其他PDF阅读器进行安装后阅读。

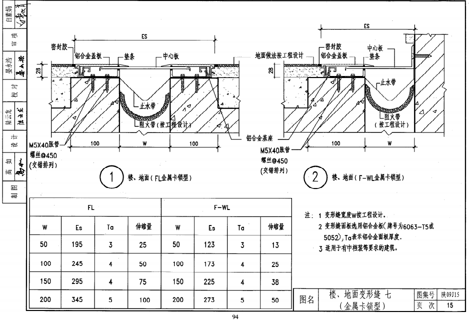
陕09J15建筑变形缝图集(高清版)内容截图







陕09J15建筑变形缝图集(高清版)相关内容小编就为大家介绍到这里了,更多pdf格式文档资料下载,敬请关注东坡下载站!

家用游戏机简史pdf免费清晰版
2015最新优秀精美创意个人简历模板合集doc格
锦绣蓝图(中文第2版)pdf完整扫描版
SAP2000结构分析简明教程pdf扫描版【完整清
04DX101-1建筑电气常用数据图集pdf格式免费







05J909/07G120工程做法完整图集(高清无水印
Spring MVC学习指南pdf高清扫描版
疯狂android讲义第3版pdf高清扫描版【中文版
php从入门到精通第3版pdf高清完整扫描版免费
别怕 Excel 函数其实很简单pdf高清完整版
GB50016-2014建筑设计防火规范pdf格式免费版