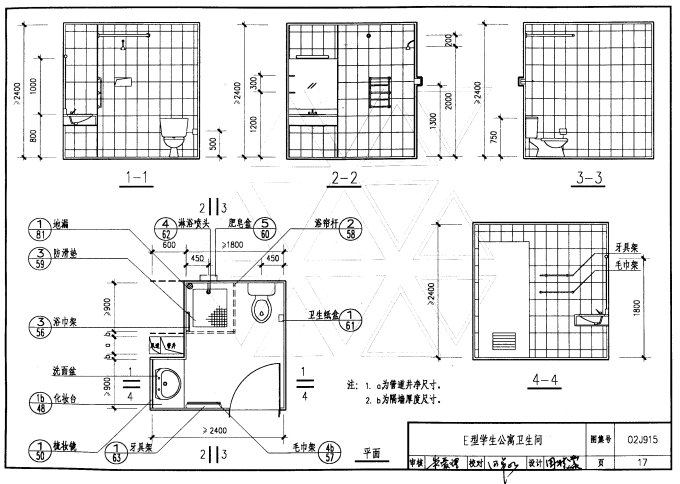
本节内容小编为大家带来的是pdf格式免费高清版02J915公共建筑卫生间图集(简称02j915图集),如果你正好在寻求这样一份02j915卫生间图集,那么这份文档一定会对你有所帮助的!
温馨提示:
本文档为PDF格式文档,因此需确保在阅读之前你已经安装了pdf阅读器,如果尚未安装阅读器,建议下载福昕pdf阅读器或其他PDF阅读器进行安装后阅读。

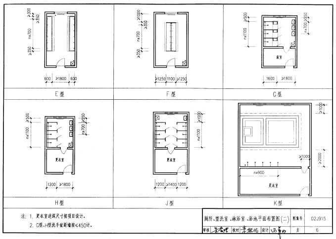
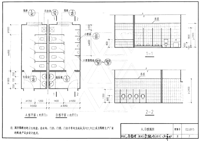
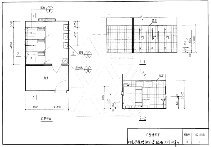
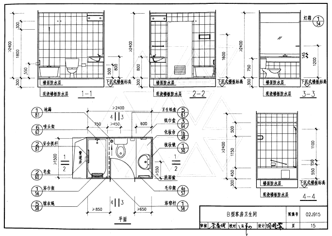
02J915公共建筑卫生间图集高清版截图一览










02J915公共建筑卫生间图集高清版相关内容小编就为大家介绍到这里了,更多pdf格式文档资料下载,敬请关注东坡下载站!

精通C#(中文版)完整免费版【共1201页】
写给大家看的PPT设计书pdf格式免费版【高清
尼康D750中文使用指南pdf高清电子版【完整无
电梯安全知识培训课件免费完整版【共30页】
GEO 2015年在线旅游行业洞察报告pdf格式最新







05J909/07G120工程做法完整图集(高清无水印
GB50016-2014建筑设计防火规范pdf格式免费版
疯狂android讲义第3版pdf高清扫描版【中文版
Spring MVC学习指南pdf高清扫描版
图解机器学习pdf高清扫描版【中文版】