本节内容中小编为大家精选带来的是11G329-1和11G329图集更正说明,如果你想对11g3291建筑物抗震构造详图有更多的了解,小编建议你可以将本pdf格式免费版资料下载下来进行查看!
温馨提示:
本文档为PDF格式文档,因此需确保在阅读之前你已经安装了pdf阅读器,如果尚未安装阅读器,建议下载福昕pdf阅读器或其他PDF阅读器进行安装后阅读。

11G329-1和11G329图集更正说明内容简介
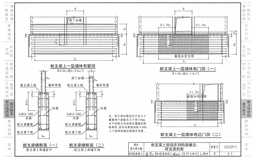
截图一览






L09J105住房防火型烟气集中排放系统图集相关内容小编就为大家介绍到这里了,更多pdf格式文档资料下载,敬请关注东坡下载站!

App这样设计才好卖pdf格式免费版
2014行政职业能力测验全真模拟试卷及答案详
从零开始学炒股pdf格式【炒股入门知识】
代码之美(中文版)epub免费完整版
JavaScript基础教程pdf格式高清免费完整版【







05J909/07G120工程做法完整图集(高清无水印
Spring MVC学习指南pdf高清扫描版
疯狂android讲义第3版pdf高清扫描版【中文版
php从入门到精通第3版pdf高清完整扫描版免费
GB50016-2014建筑设计防火规范pdf格式免费版
别怕 Excel 函数其实很简单pdf高清完整版