本节内容小编为大家精选到来的是05J909工程做法图集(05j909图集免费下载),简称05j909图集,如果你正好需要这样一份pdf格式免费版05J909工程做法图集,那么小编建议你可以在本文下方的下载地址进行下载!
温馨提示:
本文档为PDF格式文档,因此需确保在阅读之前你已经安装了pdf阅读器,如果尚未安装阅读器,建议下载福昕pdf阅读器或其他PDF阅读器进行安装后阅读。

05J909工程做法图集内容节选
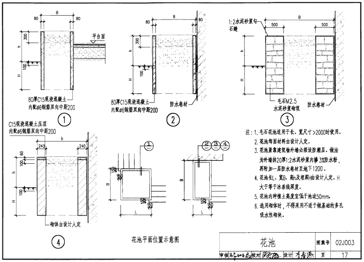
截图一览






……
05J909工程做法图集相关截图小编就为大家介绍到这里了,更多pdf格式文档资料下载,敬请关注东坡下载站!

epub电子书合集高清电子版【共五本it类书籍
04G211砖烟囱图集pdf格式高清免费版【完整版
日常生存自救手册doc格式【word版】
06K105屋顶自然通风器选用与安装图集pdf格式
3DMax效果图制作实例引导教程pdf格式免费版


GB50016-2014建筑设计防火规范pdf格式免费版
python基础教程中文高清pdf【第二版】
疯狂android讲义第3版pdf高清扫描版【中文版
11G101新版全套图集pdf格式最新整理版【完整
13J811-1建筑设计防火规范图示(超清版)pdf格