本节内容东坡小编为大家整理带来的是钢筋混凝土过梁图集之03G322-4(04G322-4)混凝土小型空心砌块夹心墙图集(以下简称为03g3224图集),该03g3224图集为pdf格式高清电子版,内容完整免费,由31页组成,欢迎需要这份03g3224图集的朋友前来下载查阅!
03g3224图集简介
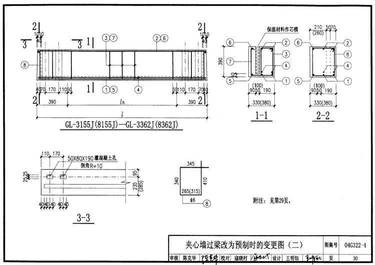
该图集适用于混凝土小型空心砌块夹心墙体的门窗洞口的过梁。
03g3224图集相关推荐
(以下均为钢筋混凝土过梁图集)
03g3224图集样张





03G322-4混凝土小型空心砌块夹心墙图集介绍
本节内容东坡小编为大家整理带来的是钢筋混凝土过梁图集之03G322-4(04G322-4)混凝土小型空心砌块夹心墙图集(以下简称为03g3224图集),该03g3224图集为pdf格式高清电子版,内容完整免费,由31页组成,欢迎需要这份03g3224图集的朋友前来下载查阅!
该图集适用于混凝土小型空心砌块夹心墙体的门窗洞口的过梁。
(以下均为钢筋混凝土过梁图集)




下载地址
编辑推荐
绿色清爽卡通动漫PPT模板免费版【动漫ppt背
120KB / 04-17 / 免费版【动漫ppt背景】
志愿时3.0用户使用手册ppt格式免费版【志愿
3.6M / 04-17 / ppt格式免费版【志愿时使用教程】
06D401-1吊车供电线路安装图集pdf超清电子版
4.0M / 04-17 / pdf超清电子版【无水印图集】
炫风错题本1.2 注册破解版【高考状元的错题
39.5M / 06-03 / 1.2 注册破解版【高考状元的错题本】
阿英拼音打字练习软件2015.7 官方最新版 【
6.9M / 07-07 / 2015.7 官方最新版 【拼音打字练习软件】
相关合集
本类软件排行