新03G307预制混凝土槽形板图集为新疆标准设计图集之一,该图集一般被简称为新03g307图集,本节内容东坡小编为大家整理带来的是一份pdf格式免费清晰版由30页组成的新03g307图集,以下有该图集的样张,如果你需要一份新03g307图集作为参考资料的话,那么该03g307图集将会是一个不错的选择哦!有需要的朋友快来下载吧!
新03g307图集目录
1、编制说明;
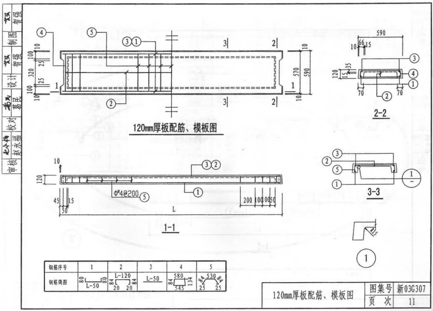
2、120mm/180mm厚板选用表以及厚板配筋、模板图;
3、跨度2.1m/2.4m/2.7m/3.0m/3.3m/3.6 m/3.9m/4.0m/4.2m/4.5m/4.8m板材料表;
4、120mm/ 180mm厚板结构性能检验参数表;
5、结构平面示意图;
6、非抗震设防区节点大样;
7、抗震设防区节点大样;
8、槽形板预留孔洞及配件详图。
新03g307图集样张





新编计算机办公自动化实用教程pdf格式清晰扫
高中毕业生自我鉴定范文docx格式免费版【高
ACCESS2010基础教程ppt(共108页)免费版
老男孩吉他谱打印版word版【高清六线谱】
扬子江药业集团有限公司医药代表工作总结do





GB50016-2014建筑设计防火规范pdf格式免费版
05J909/07G120工程做法完整图集(高清无水印
疯狂android讲义第3版pdf高清扫描版【中文版