本节内容东坡小编为大家整理带来的是一份建筑专业图集——06J121-3外墙外保温建筑构造(三)图集,该图集又被简称为06j1213图集。需要向大家介绍的是,小编为大家整理带来的这份06j1213图集为pdf格式完整清晰版,所以如果你需要下载一份免费的优质06j1213图集,那就赶紧点击本文相应的下载地址来进行下载吧!
06j1213图集目录
总说明
A型-喷涂硬质聚氨酯泡沫塑料外墙外保温系统
说明
聚氨酯外墙外保温墙体构造
平、立面索引图(涂料饰面)
墙角(涂料饰面)
勒脚(涂料饰面)
女儿墙和檐沟(涂料饰面)
窗口(涂料饰面)
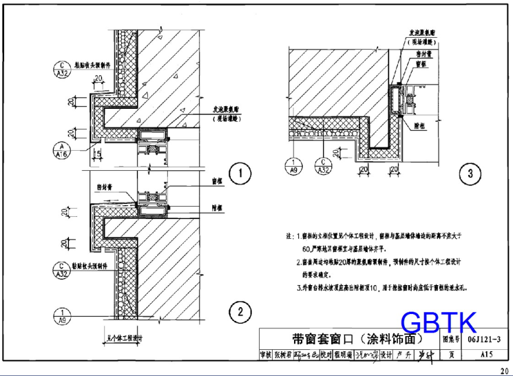
带窗套窗口(涂料饰面)
挑窗窗口(涂料饰面)
封闭阳台(涂料饰面)
不封闭阳台(涂料饰面)
平、立面索引图(面砖饰面)
06j1213图集简介
本图集编入现场浇注与模浇硬质聚氨酯外墙外保温系统和保温复合装饰板外墙外保温系统。前者有涂料和面砖饰面;后者采用粘结和干挂复合板的方式,复合板有涂料、面砖和金属饰面。
图集中给出了两种外墙外保温系统所用材料的技术性能指标、设计与施工要求和在建筑墙体、勒脚、门窗洞口、檐口、女儿墙、阳台、变形缝等部位的建筑构造,以及不同传热系数限值要求的保温层厚度表。
为适应各地执行建筑节能标准的不同现状,给出了不同保温层厚度的墙体的传热系数,各地根据当地节能目标对墙体传热系数限值的要求,选取对应的保温层厚度。
06j1213图集样张





超市人事工作总结doc格式【免费下载】
11SG814建筑基坑支护结构构造图集pdf格式免
绘画构图学教程pdf清晰影印版【中国美术院校
司法考试论述题必背20考点pdf格式高清免费版






GB50016-2014建筑设计防火规范pdf格式免费版
05J909/07G120工程做法完整图集(高清无水印
疯狂android讲义第3版pdf高清扫描版【中文版