14J206种植屋面建筑构造图集是一份根据《种植屋面工程技术规程》JGJ 155-2013编制的图集,该图集适用于新建、改建、扩建、既有建筑改造的民用及工业建筑的屋面绿化工程和地下室顶板的绿化工程等,本节内容东坡小编为大家整理带来的是一份pdf格式完整高清电子版且免费的优质14j206图集,该图集由101页组成,需要一份14j206图集免费下载文档的朋友快来下载吧!
14j206图集内容简介
图集内容主要包括:种植平屋面、容器式种植屋面、种植坡屋面、钢基板种植屋面、地下室种植顶板、既有建筑屋面种植改造的相关技术要求及构造节点,屋面种植植物种类推荐表等,供设计人员直接选用。
图集特点:1、系统地、全面地收入了目前常用的各类种植屋面形式及构造,且符合《种植屋面工程技术规程》JGJ155-2013的规定。2、图集包括以钢筋混凝土基板及钢基板的二种屋面结构上的种植构造,满足当下常见工程的需要。3、为了方便选用,图集还提供了适于屋面生长的种植植物种类推荐表。
本图集适用于新建、改建、扩建、既有建筑改造的民用及工业建筑的屋面绿化工程和地下室顶板的绿化工程。适用于坡度为2%~10%的钢筋混凝土基板平屋面、坡度为10%~50%的钢筋混凝土基板坡屋面、坡度为5%~20%的钢基板屋面、坡度为1%~2%的地下建筑顶板的种植工程。
14j206图集目录
目录 1
总说明 3
种植平屋面
种植平屋面说明 1-1
种植平屋面构造做法 1-2
种植平屋面索引图 1-5
种植平屋面配件图 1-6
种植平屋面女儿墙外排水落口 1-8
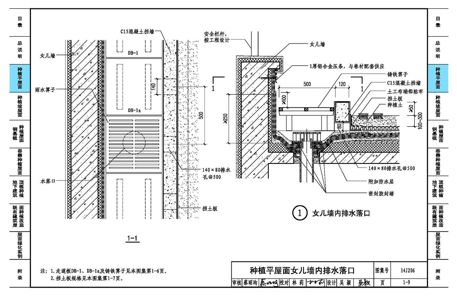
种植平屋面女儿墙内排水落口 1-9
种植平屋面变形缝 1-10
种植平屋面变形缝立墙泛水、绿地内排水落口 1-11
种植平屋面立墙泛水、管道出屋面 1-12
种植平屋面设备基础、排气道、出入口 1-13
种植平屋面种植池 1-14
种植平屋面树木固定方法 1-16
种植平屋面平台地面边缘、台阶 1-18
种植平屋面采光天窗、架空走道、步道 1-19
种植平屋面花架、竹围栏 1-20
种植平屋面水池 1-21
种植坡屋面
种植坡屋面说明 2-1
种植坡屋面构造做法 2-2
种植坡屋面索引图 2-4
种植坡屋面防滑系统 2-5
种植坡屋面挑檐、檐沟 2-6
种植坡屋面挑檐、山墙封檐、立墙泛水 2-7
种植坡屋面屋脊、屋面阴角、管道出屋面、设备基础 2-8
种植坡屋面变形缝 2-9
钢基板种植屋面
铜基板种植屋面说明、索引图 3-1
钢基板种植屋面构造做法 3-2
钢基板种植屋面女儿墙内檐沟、女儿墙内檐沟(带边走道) 3-3
铜基板种植屋纵坡山墙(缓冲带)、纵坡山墙(带边走道) 3-4
钢基板种植屋面走道板、变形缝、出屋面管道 3-5
容器种植屋面
容器种植屋面说明及索引图 4-1
容器种植屋面构造做法 4-2
典型种植容器构造 4-4
容器种植屋面变形缝、设备基础、排气道、走道 4-6
容器种植屋面立墙泛水、内天沟水落口、女儿墙水落口 4-7
钢基板容器种植屋面女儿墙内檐沟、女儿墙内檐沟(带边走道) 4-8
铜基板容器种植屋面纵坡山墙(缓冲带)、纵坡山墙(带边走道) 4-9
地下建筑顶板种植
地下建筑顶板种植说明 5-1
地下建筑顶板种植构造做法 5-2
地下建筑顶板种植索引图 5-4
地下建筑顶板种植排水措施 5-5
地下建筑明板种植立墙泛水、渗水管排水、采光天窗 5-6
地下建筑顶板种植转角自然排水、散渗排水、盲管排水、明沟排水 5-7
地下建筑顶板种植设备基础、变形缝 5-8
既有建筑屋面种植改造
既有建筑屋面种植改造说明及构造做法 6-1
既有建筑屋面种植改造构造做法 6-2
屋面绿化实例
屋面绿化实例一 Ll-l
屋面绿化实例二 L2-1
附录
附录一钢基板种植屋面常用压型铜板板型 F-l
附录二屋面种植种类推荐表 F-2
14j206图集样张




2015上海市房屋租赁合同范本免费版【word打
数据挖掘导论(中文版)pdf格式【完整电子版】
09S303医疗卫生设备安装图集pdf格式免费版【
电工仿真软件(刚学电工时的启蒙软件)
小学语文教师求职信范文doc格式免费版【教师







GB50016-2014建筑设计防火规范pdf格式免费版
05J909/07G120工程做法完整图集(高清无水印
疯狂android讲义第3版pdf高清扫描版【中文版