08ZK02通风与空调工程图集适用于新建、改建的一般通风空调工程,不适用于人防工程以及有特殊防护要求工程。本节内容小编为大家整理带来的是一份pdf格式完整电子清晰版08ZK02通风与空调工程图集,需要08zk02图集免费下载文档的朋友点击本文相应的下载地址进行下载即可!以下是对该图集的相关介绍,希望对大家有所帮助!
08zk02图集相关介绍
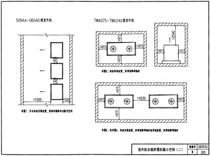
通风与空调工程设计图集对每类设备和构件,原则上选择一种较典型和先进的新型产品作为编制施工安装图的依据,当使用其他类似产品时,可参照使用。
08zk02图集样张






SQL语言艺术(中文版)pdf超清扫描版
电缆线路施工及验收规范pdf格式高清电子版
02X101-3综合布线系统工程设计施工图集pdf格
GEO 2015年在线旅游行业洞察报告pdf格式最新
PREMIERE PRO CS4影视编辑实例教程pdf免费完







GB50016-2014建筑设计防火规范pdf格式免费版
12J201平屋面建筑构造电子版高清图集pdf格式
疯狂android讲义第3版pdf高清扫描版【中文版