新06G605-1砌体结构构造(多层砌体房屋结构抗震构造)图集——简称为新06g6051图集,是新疆维吾尔自治区地方标准图集之一,本节内容小编为大家整理带来这份新06g6051图集为pdf格式高清电子版,如果你需要这份图集的话,那就赶紧点击本文相应的下载地址来进行下载吧!
新06g6051图集适用范围简介
1、本图集主要适用于抗震设防烈度为6~9度的P型烧结多孔砖(简称“多孔砖”)或烧结普通砖(简称“普通砖”)砌体承重的多层房屋。
2、本图集适用于设计使用年限不大于50年的上述砌体结构。
3、非抗震设防地区可参照抗震设防烈度为6度的构造选用。
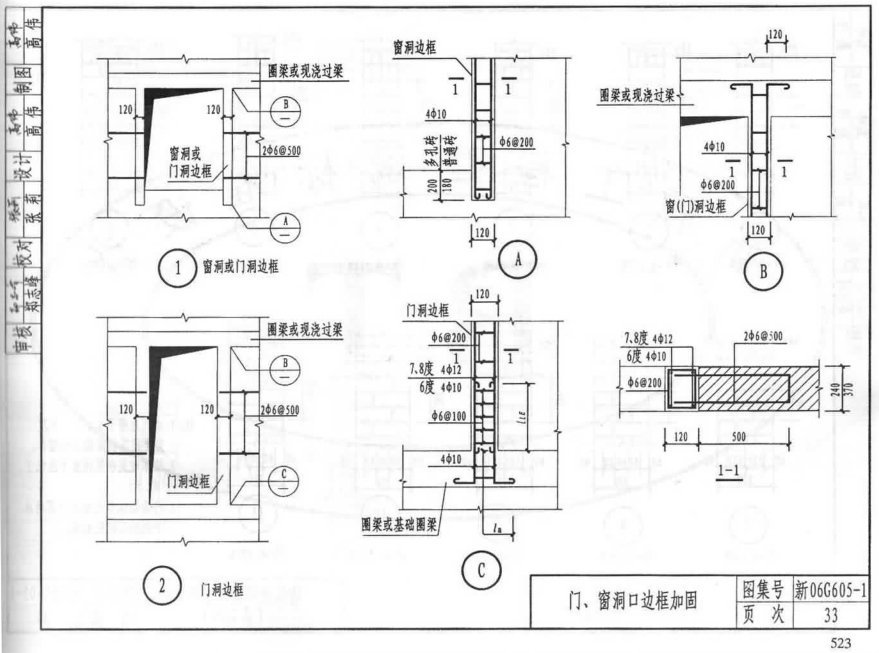
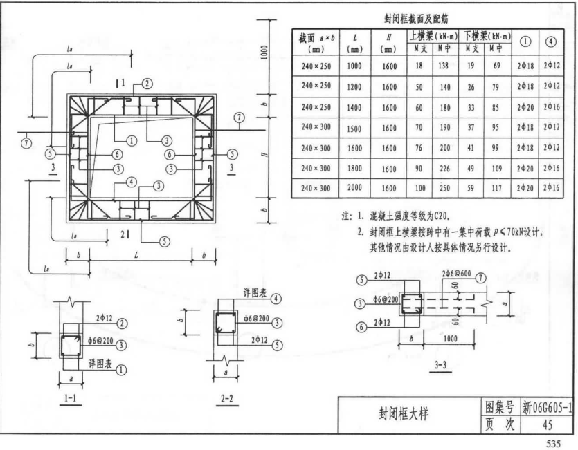
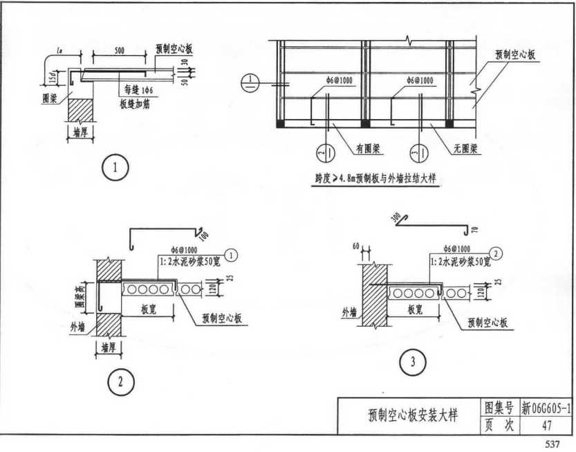
新06g6051图集样张






ruby基础教程(中文第四版)epub免费版第4版【
世界是数字的(中文版)epub免费完整版
11SG814建筑基坑支护结构构造图集pdf格式免
软件工程最佳实践(中文版)pdf格式【高清完整
路由器密码破解教程(图文教程)word免费版







GB50016-2014建筑设计防火规范pdf格式免费版
05J909/07G120工程做法完整图集(高清无水印
疯狂android讲义第3版pdf高清扫描版【中文版