95S235-2雨水口(二)混泥土井圈图集是一份适用于一般地区的室外排水工程的参考图集,如用于湿陷性黄土,膨胀土,水冻土以及地震设计烈度为9度及9度以上工程时,应根据有关规范和规程另作处理。本节内容小编为大家整理带来的是该图集的pdf格式免费清晰版,适合作为参考图集使用,有需要的朋友赶紧点击本文下方相应的下载地址进行下载使用吧!
95S235-2雨水口(二)混泥土井圈图集相关推荐
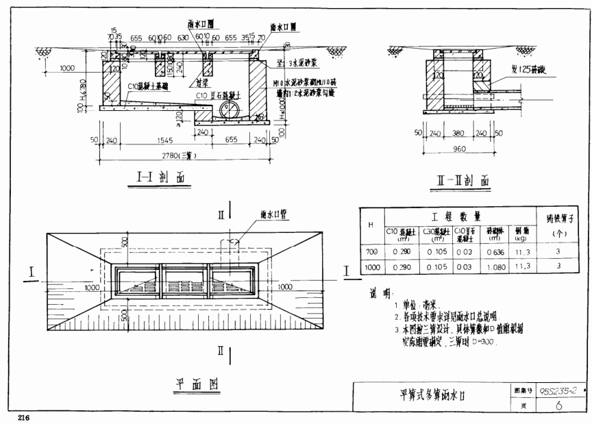
95S235-2雨水口(二)混泥土井圈图集图样




pdf格式免费版95S235-2雨水口(二)混泥土井圈图集相关内容小编就为大家介绍到这里了,更多pdf格式免费图集资料下载,敬请关注东坡下载站!

炒股入门与技巧pdf格式免费版【扫描版】
Java加密与解密的艺术pdf完整扫描版
Android软件安全与逆向分析pdf格式高清免费
01K403风机盘管安装图集pdf格式【超清免费版
2016年考研西医综合考研大纲全文pdf格式【高








GB50016-2014建筑设计防火规范pdf格式免费版
疯狂android讲义第3版pdf高清扫描版【中文版