95SS103立式水泵隔振及其安装图集简称为95ss103图集,该图集主要适用于有隔振要求的泵站或建筑物泵房内的立式水泵安装工程,具有一定的实用性和参考价值,本节内容小编为大家整理带来的是一份pdf格式超清免费版的95ss103图集,该图集字迹清晰,内容无水印,适合下载打印使用,如果你需要一份具有实用价值的95ss103图集,那就赶紧点击本文相应的下载地址来下载使用该95ss103图集吧!
温馨提示:
本文档为PDF格式文档,因此需确保在阅读之前你已经安装了pdf阅读器,如果尚未安装阅读器,建议下载福昕pdf阅读器或其他PDF阅读器进行安装后阅读。
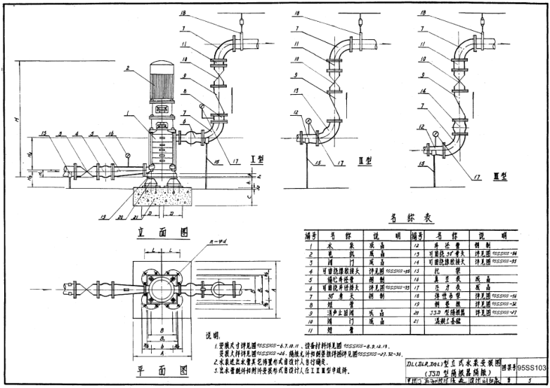
95SS103立式水泵隔振及其安装图集图样





pdf格式免费版95SS103立式水泵隔振及其安装图集相关内容小编就为大家介绍到这里了,更多pdf格式免费图集资料下载,敬请关注东坡下载站!

10K121风口选用与安装图集pdf格式【高清免费
深入NoSQL(中文版)pdf完整电子版
完美C++(中文第五版)pdf高清免费版【完整版
复旦大学教师年终工作总结doc格式【免费版】
96K150-1筒形风帽及附件图集pdf格式免费高清







GB50016-2014建筑设计防火规范pdf格式免费版
12J201平屋面建筑构造电子版高清图集pdf格式
疯狂android讲义第3版pdf高清扫描版【中文版