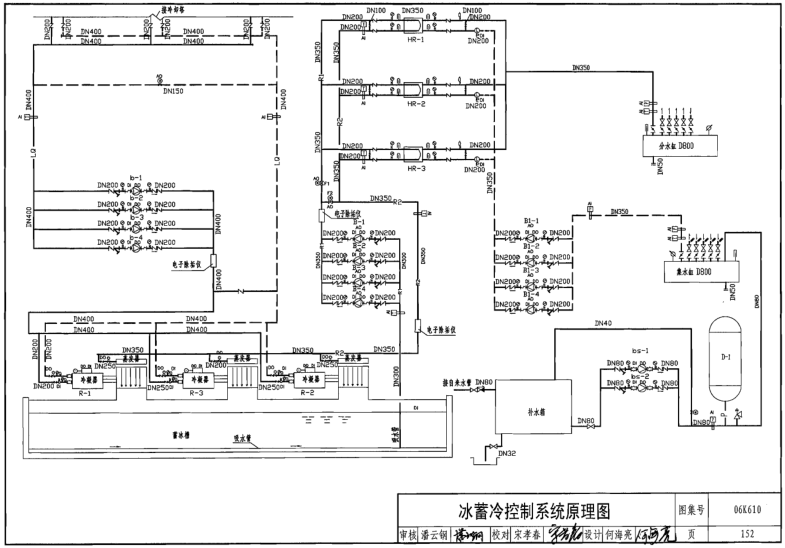
06K610冰蓄冷系统设计与施工图集简称为06k610图集或冰蓄冷系统设计与施工图集,本图集适用于新建、改建和扩建的工业与民用建筑的冰蓄冷空调系统的设计、施工,本节内容小编为大家整理带来的是该图集的pdf格式高清电子版,该图集共由170页组成,图集内容完整、字迹清晰无水印,如果你需要这样一份图集作为参考资料的话,那就赶紧点击本文的下载地址来下载它吧!
温馨提示:
本文档为PDF格式文档,因此需确保在阅读之前你已经安装了pdf阅读器,如果尚未安装阅读器,建议下载福昕pdf阅读器或其他PDF阅读器进行安装后阅读。
06K610冰蓄冷系统设计与施工图集图样




pdf格式免费版06K610冰蓄冷系统设计与施工图集相关内容小编就为大家介绍到这里了,更多pdf格式免费图集资料下载,敬请关注东坡下载站!

UML和模式应用(中文第三版)pdf格式免费版【
电梯安全知识培训课件免费完整版【共30页】
南京医药股份有限公司医药代表工作总结doc格
网络安全宣传手册pdf格式免费版
爱上单片机pdf高清晰完整电子版







GB50016-2014建筑设计防火规范pdf格式免费版
05J909/07G120工程做法完整图集(高清无水印
疯狂android讲义第3版pdf高清扫描版【中文版