03K501-1燃气红外线辐射供暖系统设计选用及施工安装图集是一份主要适用于低强度连续式辐射供暖系统的图集,该图集一般被简称为03k5011图集,本节内容小编为大家整理带来的是这份图集的pdf格式高清免费版,需要这份图集作为参考资料的朋友点击本文相应的下载地址即可下载查阅该图集的全部内容,欢迎有需要的朋友下载查阅!
温馨提示:
本文档为PDF格式文档,因此需确保在阅读之前你已经安装了pdf阅读器,如果尚未安装阅读器,建议下载福昕pdf阅读器或其他PDF阅读器进行安装后阅读。
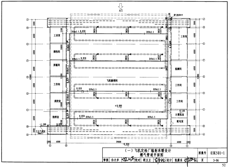
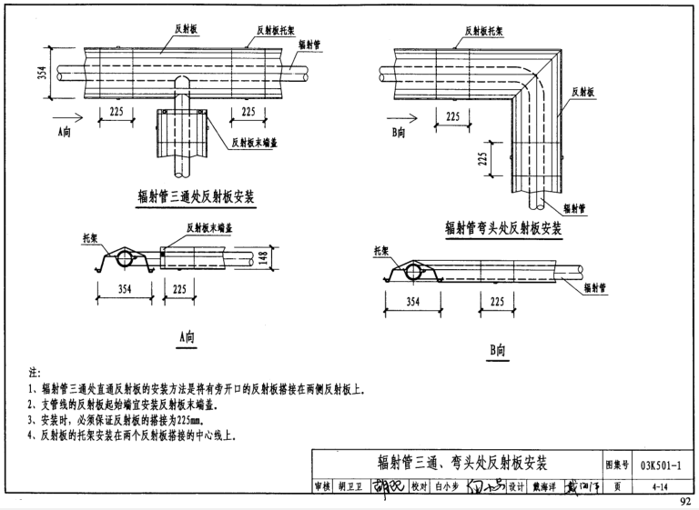
03K501-1燃气红外线辐射供暖系统设计选用及施工安装图集图样




03K501-1燃气红外线辐射供暖系统设计选用及施工安装图集简介
图集适用范围:燃气红外线辐射供暖系统是一种卫生条件和舒适标准都比较高的供暖技术。目前进入市场的燃气红外线辐射供暖设备产品很多。按形式分有两类:一种为单体式,一种为连续式,按表面温度分也有两类:一种是高强度辐射发生器,表面温度约为800-1000℃;一种是低强度辐射发生器,表面温度约为300—500℃。
本图集适用于低强度连续式辐射供暖系统。该系统特别适用于高大空间,外窗面积大,换气量大的工业或民用建筑内部的全面辐射供暖。如各种库房、汽车或飞机制造装配车间等高大建筑,但在人员较多或密集的高大空间(如候车室、超市、商场、体育馆等)中使用时,由于燃气管道需敷设在供暖区域上空,安全防护措施应与有关管理部门磋商(无效的安全防护措施将导致一次投资的浪费)。燃气红外线辐射供暖系统具备以下安全措施:真空泵预启动检测,发热系统负压运行,供暖空间无明火,系统关闭后充分排空。该系统部分设备国产化后,一次性投资有所减少,气体排放量满足国家的有关环保要求。
pdf格式免费版03K501-1燃气红外线辐射供暖系统设计选用及施工安装图集相关内容小编就为大家介绍到这里了,更多pdf格式免费图集资料下载,敬请关注东坡下载站!

软件测试(中文第三版)pdf免费清晰版【软件测
Perl实例精解(原书第四版)pdf中文扫描版【完
03D5014接地装置安装图集pdf格式高清免费版
三菱特殊功能模块FX2N-4AD-PT用户指南pdf格
2015北京协和医院护士年终总结doc格式免费版





GB50016-2014建筑设计防火规范pdf格式免费版
05J909/07G120工程做法完整图集(高清无水印
疯狂android讲义第3版pdf高清扫描版【中文版