本站之前曾为大家打来了02(04)SG518-1门式刚架轻型房屋钢结构图集(2004年局部修改版)合集,有部分朋友表示只需要02sg5181图集,希望小编可以单独整理一份,鉴于此,本节内容小编就为大家单独整理带来了这份02SG518-1门式刚架轻型房屋钢结构图集,该图集同样也是pdf格式高清免费版,当然也没有水印哦!如果你需要这份图集的话,点击相应的下载地址进行下载即可!
温馨提示:
本文档为pdf格式,因此需确保在阅读之前你已经安装了pdf阅读器,如果尚未安装阅读器,建议下载福昕pdf阅读器或其他PDF阅读器,进行安装后阅读。
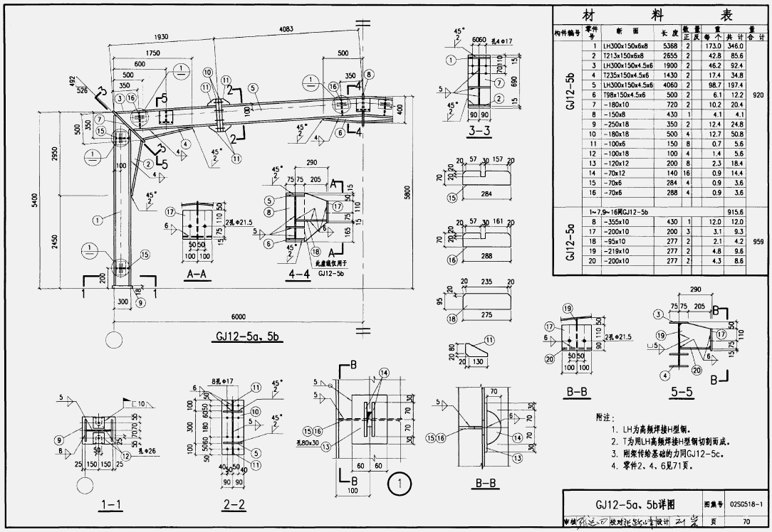
02SG518-1门式刚架轻型房屋钢结构图集样张




pdf格式免费版02SG518-1门式刚架轻型房屋钢结构图集相关内容小编就为大家介绍到这里了,更多pdf格式免费图集资料下载,敬请关注东坡下载站!

环保手抄报作品欣赏pdf格式【环保手抄报版面
97K130-1ZP型消声器(ZW型消声弯管)图集pdf格
简明法语教程单词表pdf免费完整版【打印版】
经典语段赏析doc格式免费版【130个诵读经典
丽江旅游攻略2016(共30张)pdf格式高清电子版







GB50016-2014建筑设计防火规范pdf格式免费版
05J909/07G120工程做法完整图集(高清无水印
Spring MVC学习指南pdf高清扫描版
疯狂android讲义第3版pdf高清扫描版【中文版