该pdf格式高清免费电子版98R401-1常压密闭水箱图集共有19页,图集内容完整,如果你需要一份这样的常压密闭水箱图集进行下载打印,那就赶紧点击本文下方相应的下载地址进行下载使用吧!相信它一定不会令你失望的!
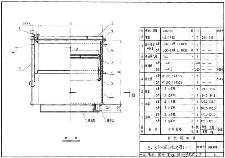
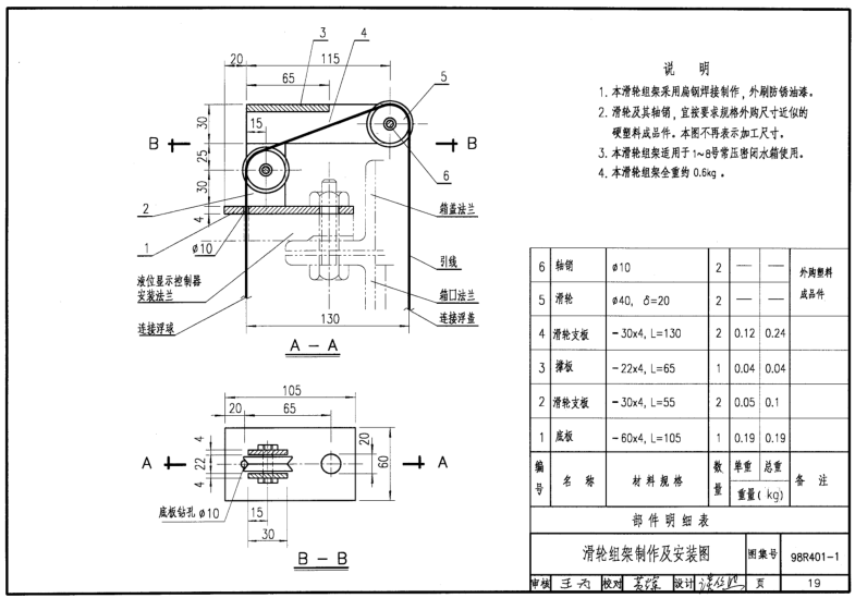
图集样张





pdf格式免费版98R401-1常压密闭水箱图集相关内容小编就为大家介绍到这里了,更多pdf格式免费图集资料下载,敬请关注东坡下载站!

98R401-1常压密闭水箱图集介绍
该pdf格式高清免费电子版98R401-1常压密闭水箱图集共有19页,图集内容完整,如果你需要一份这样的常压密闭水箱图集进行下载打印,那就赶紧点击本文下方相应的下载地址进行下载使用吧!相信它一定不会令你失望的!
图集样张





pdf格式免费版98R401-1常压密闭水箱图集相关内容小编就为大家介绍到这里了,更多pdf格式免费图集资料下载,敬请关注东坡下载站!
下载地址
编辑推荐
七天学会时间管理电子书pdf格式最新整理版【
508KB / 04-21 / pdf格式最新整理版【免费版】
Excel效率手册早做完不加班电子书pdf格式【
8.7M / 04-21 / pdf格式【高清免费电子版】
英语四六级翻译技巧大全pdf格式【四六级翻译
251KB / 04-21 / pdf格式【四六级翻译词汇】
理查德心理学与生活电子书pdf格式【高清免费
36.2M / 04-21 / pdf格式【高清免费版】
阿英拼音打字练习软件2015.7 官方最新版 【
6.9M / 07-07 / 2015.7 官方最新版 【拼音打字练习软件】
相关合集
本类软件排行