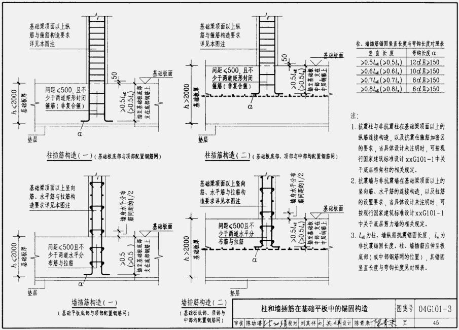
04G101-3筏形基础图集全称为04G101-3混凝土结构施工图平面整体表示方法制图规则和构造详图(筏形基础),本节内容小编为大家精选带来的这份04g1013图集共由59页组成,该pdf格式免费高清电子版图集内容完整详细,另外该04g1013图集免费下载文档的制图规则,既是设计者完成筏形基础的构件平法施工图的依据,也是施工 、监理等人员准确理解和实施筏形基础平法施工图的依据。有需要的朋友可以点击本文下方相应的下载地址将这份04g101 3图集下载下来进行使用。
温馨提示:
本文档为PDF格式文档,因此需确保在阅读之前你已经安装了pdf阅读器,如果尚未安装阅读器,建议下载福昕pdf阅读器或其他PDF阅读器进行安装后阅读。
图集样张





pdf格式免费版04G101-3筏形基础高清电子版图集相关内容小编就为大家介绍到这里了,更多pdf格式免费图集资料下载,敬请关注东坡下载站!

Linux高性能服务器编程pdf完整高清版
物流公司出纳年终工作总结doc格式免费版
06MS201-3排水检查井图集pdf格式高清免费版
大数据时代的历史机遇(产业变革与数据科学)
超越平凡的平面设计(版式设计原理与应用)pd







GB50016-2014建筑设计防火规范pdf格式免费版
05J909/07G120工程做法完整图集(高清无水印
Spring MVC学习指南pdf高清扫描版
疯狂android讲义第3版pdf高清扫描版【中文版