本节内容小编为大家精选带来的是建筑图集电子版之00J904-1智能化示范小区设计高清电子图集,该pdf格式免费版00j9041图集共由258页组成,图集内容完整详细、字迹清晰,如果你需要一份这样的建筑图集电子版资料的话,那就赶紧点击本文下方相应的下载地址进行下载查阅吧!
温馨提示:
本文档为PDF格式文档,因此需确保在阅读之前你已经安装了pdf阅读器,如果尚未安装阅读器,建议下载福昕pdf阅读器或其他PDF阅读器进行安装后阅读。
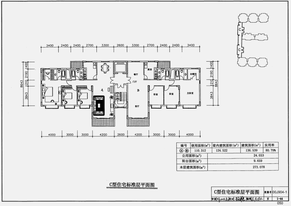
图集样张





pdf格式免费版00J904-1智能化示范小区设计高清电子版图集相关内容小编就为大家介绍到这里了,更多pdf格式免费图集资料下载,敬请关注东坡下载站!

同花顺炒股软件从入门到精通pdf格式免费高清
大数据的冲击pdf电子版【高清无水印】
税收筹划的基本理论免费版【税收ppt】
破茧成蝶(用户体验设计师)pdf高清彩版【完整
互联网进化论pdf格式【高清电子版】







GB50016-2014建筑设计防火规范pdf格式免费版
05J909/07G120工程做法完整图集(高清无水印
Spring MVC学习指南pdf高清扫描版
疯狂android讲义第3版pdf高清扫描版【中文版