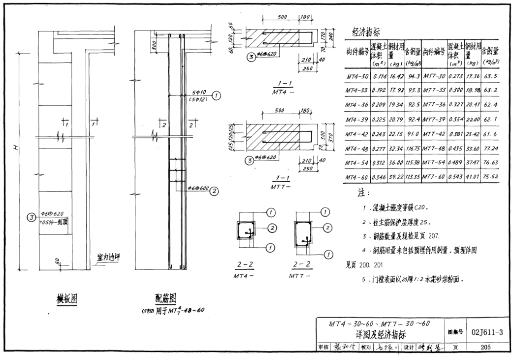
这是一份pdf格式免费版02J611-3压型钢板及夹心板大门高清图集(简称02j6113图集),该电子版图集共有214页,如果你正在需求一份02j6113图集免费下载资料,那就赶紧点击本文下方的下载地址进行下载查阅吧!
温馨提示:
本文档为pdf格式,因此需确保在阅读之前你已经安装了pdf阅读器,如果尚未安装阅读器,建议下载福昕pdf阅读器或其他PDF阅读器,进行安装后阅读。
02j6113图集内容节选





以上是关于02J611-3压型钢板及夹心板大门高清图集(电子版)的相关介绍,更多pdf格式免费图集资料下载,敬请关注东坡下载站!

当你老了完整版吉他谱word免费版【简单版】
苏J05-2006楼梯图集pdf格式高清免费版
数据仓库(原书中文第4版)pdf格式【高清完整
爱上单片机pdf高清晰完整电子版
C++程序设计现代方法(中文版)epub免费版【完







GB50016-2014建筑设计防火规范pdf格式免费版
05J909/07G120工程做法完整图集(高清无水印
Spring MVC学习指南pdf高清扫描版
疯狂android讲义第3版pdf高清扫描版【中文版