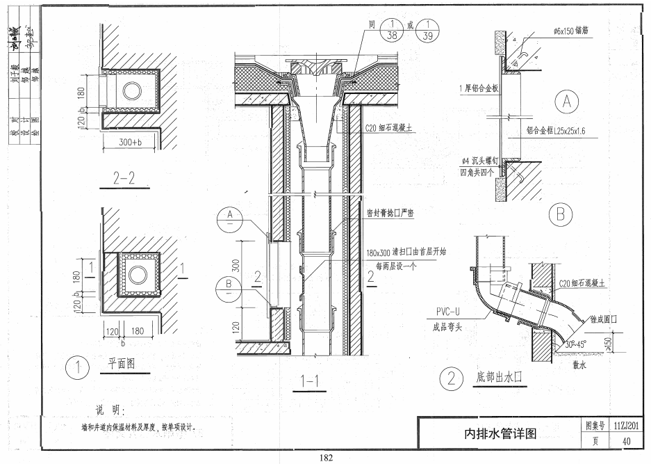
本节内容小编为大家精选带来的是11ZJ201平屋面高清电子版图集(简称11zj201图集),该图集共由41页组成,为pdf格式免费高清版,内容详细,字迹清晰,有需要的朋友点击本文下方相应的下载地址即可下载查阅这份11zj201图集。
温馨提示:
本文档为pdf格式,因此需确保在阅读之前你已经安装了pdf阅读器,如果尚未安装阅读器,建议下载福昕pdf阅读器或其他PDF阅读器,进行安装后阅读。
11ZJ201平屋面高清电子版图集内容截图





11ZJ201平屋面高清电子版图集相关内容小编就为大家介绍到这里了,更多pdf格式免费图集资料下载,敬请关注东坡下载站!

96J622-5立转钢侧窗电动开窗机图集pdf格式超
PowerPoint Mobile快速入门指南pdf格式免费
防溺水知识手抄报资料doc格式免费版【小学生
离散数学教程pdf免费完整版【超清无水印】
2015年会计基础讲义doc格式免费版【考试必备







GB50016-2014建筑设计防火规范pdf格式免费版
python基础教程中文高清pdf【第二版】
疯狂android讲义第3版pdf高清扫描版【中文版
11G101新版全套图集pdf格式最新整理版【完整
13J811-1建筑设计防火规范图示(超清版)pdf格