点击本文下方的相关下载地址你将会得到一份pdf格式高清免费版06J505-1外装修(一)高清电子版图集(简称06j5051图集),本06j5051图集共由209页组成,图集字迹清晰,内容完整,有需要的朋友点击本文下方的下载地址下载后即可查看这份06J505-1外装修(一)高清电子版图集全部内容。
温馨提示:
本文档为pdf格式,因此需确保在阅读之前你已经安装了pdf阅读器,如果尚未安装阅读器,建议下载福昕pdf阅读器或其他PDF阅读器,进行安装后阅读。
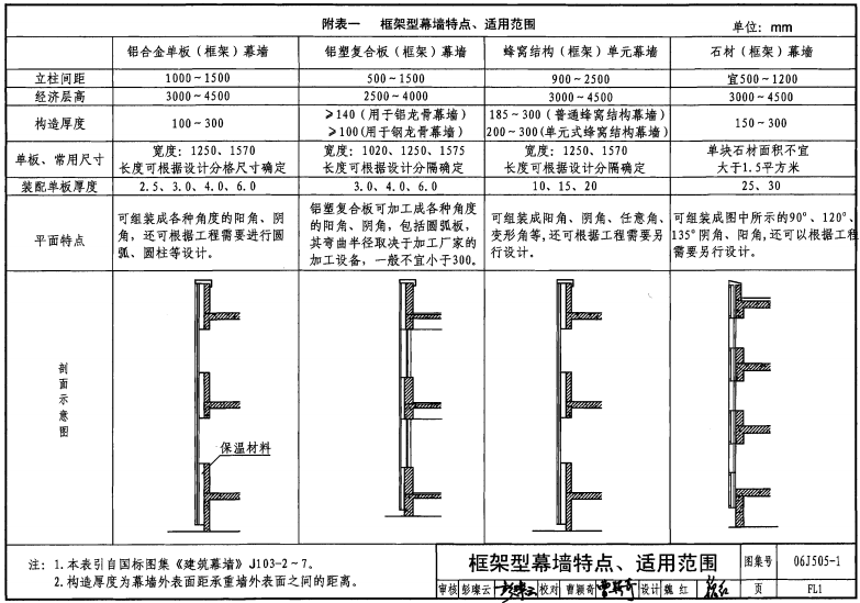
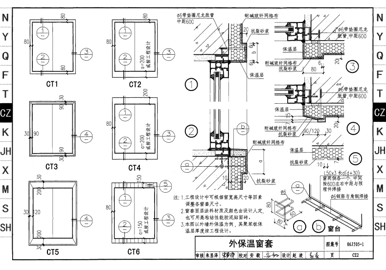
06J505-1外装修(一)高清电子版图集内容截图









06J505-1外装修(一)高清电子版图集相关内容小编就为大家介绍到这里了,更多pdf格式免费图集资料下载,敬请关注东坡下载站!

单片机原理与接口技术(第二版)pdf格式【免费
06K131风管测量孔和检查门图集pdf格式【高清
绘画构图学教程pdf清晰影印版【中国美术院校
11SG814建筑基坑支护结构构造图集pdf格式免
算法导论(中文第二版)pdf免费完整版【清晰扫







GB50016-2014建筑设计防火规范pdf格式免费版
python基础教程中文高清pdf【第二版】
疯狂android讲义第3版pdf高清扫描版【中文版
11G101新版全套图集pdf格式最新整理版【完整
13J811-1建筑设计防火规范图示(超清版)pdf格