这是一份pdf格式高清免费版04J114-2石膏砌块内隔墙高清电子图集,该电子版图集共有54页,图集内容详细完整,有需要的朋友点击本文下方的下载地址即可查阅这份04J114-2石膏砌块内隔墙高清电子版图集哦!
温馨提示:
本文档为pdf格式,因此需确保在阅读之前你已经安装了pdf阅读器,如果尚未安装阅读器,建议下载福昕pdf阅读器或其他PDF阅读器,进行安装后阅读。
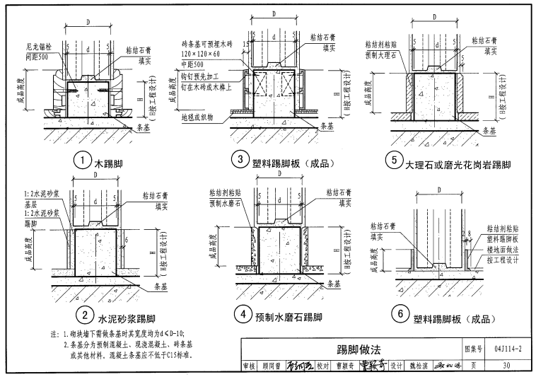
04J114-2石膏砌块内隔墙高清电子版图集内容截图






04J114-2石膏砌块内隔墙高清电子版图集相关内容小编就为大家介绍到这里了,查看完整版04J114-2石膏砌块内隔墙高清电子版图集点击本文下方的下载地址下载即可。

03R411-1室外热力管道安装地沟敷设图集pdf格
韩语口语900句Word免费版【含音频带中文】
Sencha Touch权威指南pdf完整电子版
05J910-1钢结构住宅(一)图集pdf格式免费版【
excel函数应用教程doc格式【word版】







GB50016-2014建筑设计防火规范pdf格式免费版
05J909/07G120工程做法完整图集(高清无水印
Spring MVC学习指南pdf高清扫描版
疯狂android讲义第3版pdf高清扫描版【中文版