本节内容小编为大家精选带来的是pdf格式高清无水印免费版97J103-1铝合金玻璃幕墙高清电子版图集(简称97j1031图集),该电子版97J103-1图集共有363页,图集内容完整,字迹清晰,有需要的朋友点击本文下方的下载地址进行下载后即可查阅这份97J103-1铝合金玻璃幕墙高清电子版图集。
温馨提示:
本文档为pdf格式,因此需确保在阅读之前你已经安装了pdf阅读器,如果尚未安装阅读器,建议下载福昕pdf阅读器或其他PDF阅读器,进行安装后阅读。
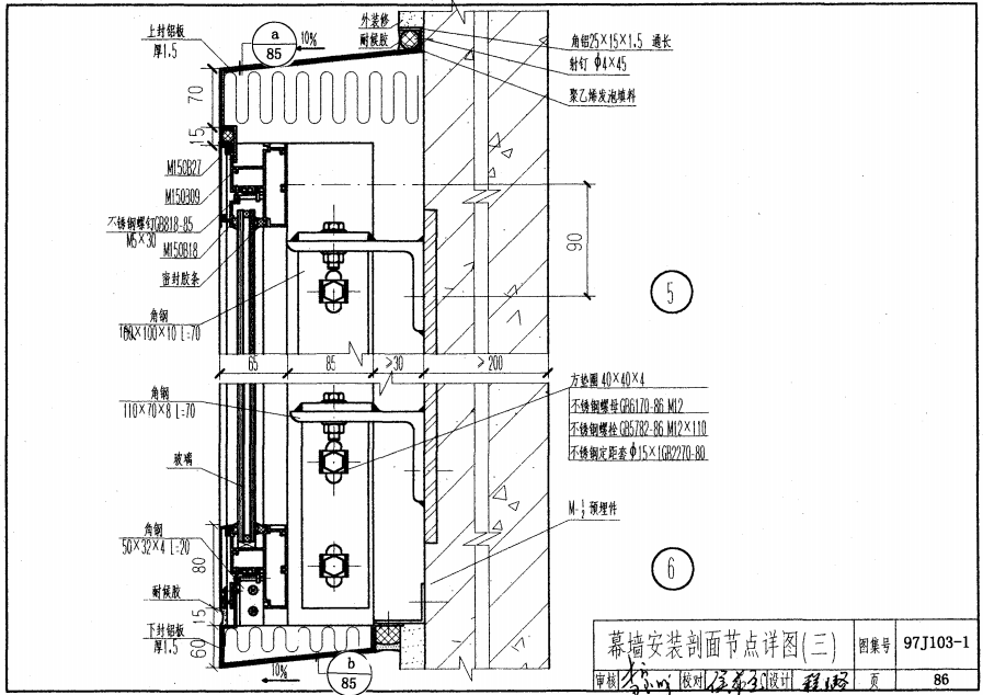
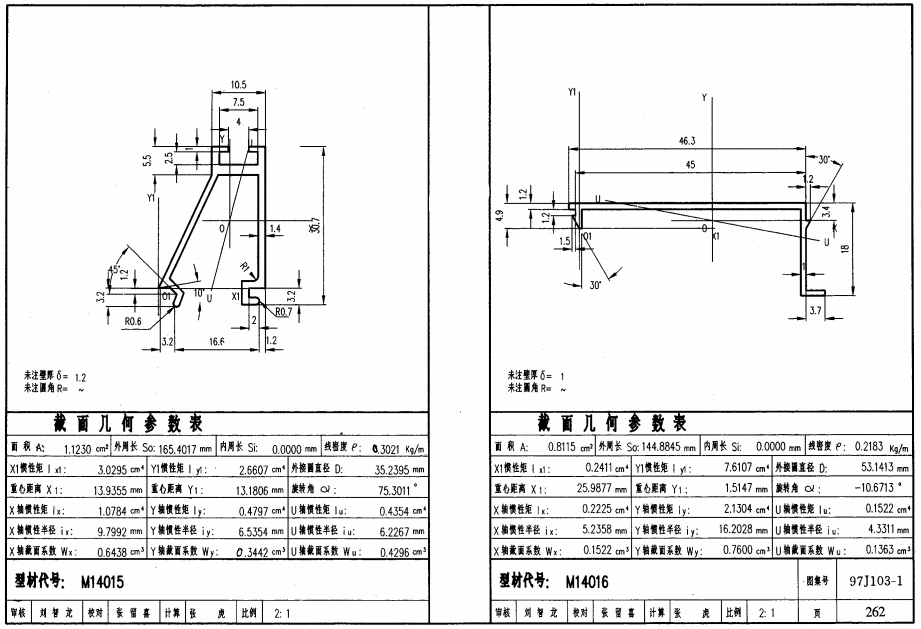
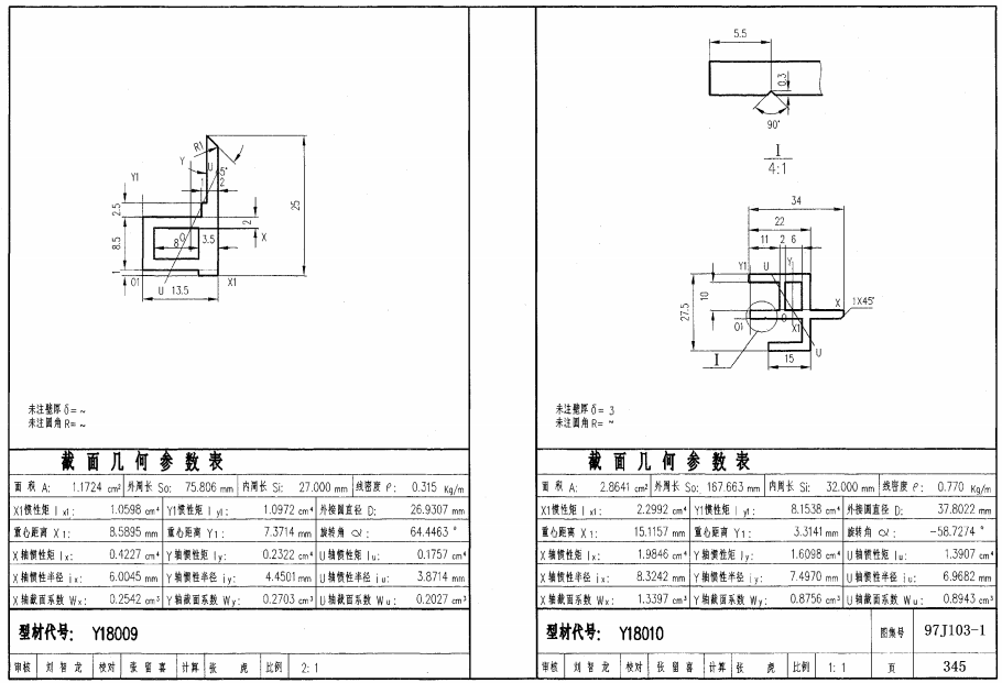
97J103-1铝合金玻璃幕墙高清电子版图集内容截图






97J103-1铝合金玻璃幕墙高清电子版图集相关内容小编就为大家介绍到这里了,查看完整版97J103-1铝合金玻璃幕墙高清电子版图集点击本文下方的下载地址下载即可。

三菱PLC特殊功能模块FX2N-4AD-TC说明书pdf格
基于状态机的嵌入式系统开发pdf免费高清版【
英语求职信范文三篇doc格式免费版【大学生英
2015年会计基础讲义doc格式免费版【考试必备
C++反汇编与逆向分析技术揭秘epub格式【完整







05J909/07G120工程做法完整图集(高清无水印
GB50016-2014建筑设计防火规范pdf格式免费版
疯狂android讲义第3版pdf高清扫描版【中文版
Spring MVC学习指南pdf高清扫描版
图解机器学习pdf高清扫描版【中文版】