本节内容小编为大家精选带来的是pdf格式高清免费版03J104蒸压加气混凝土砌块建筑构造电子版图集(简称03j104图集),该电子版03j104图集共有87页,图集字迹清晰,内容完整,如果你需要一份这样的高清无水印03j104图集免费下载资料,那就赶紧点击本文下方的下载地址进行下载查阅吧!
温馨提示:
本文档为pdf格式,因此需确保在阅读之前你已经安装了pdf阅读器,如果尚未安装阅读器,建议下载福昕pdf阅读器或其他PDF阅读器,进行安装后阅读。

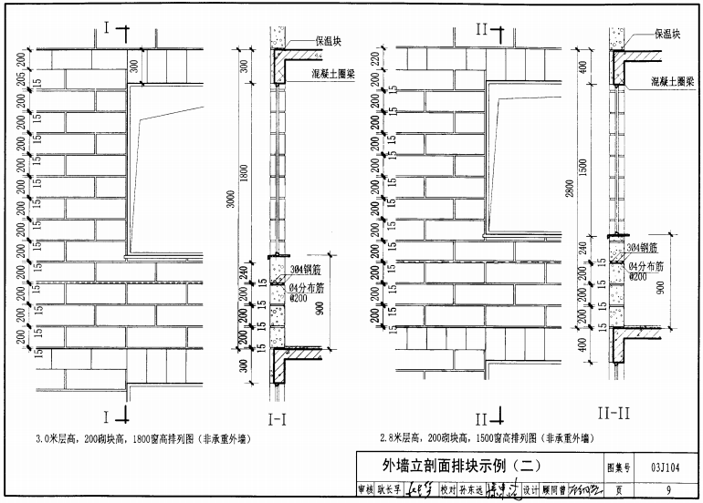
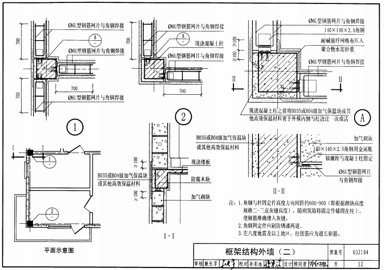
03J104蒸压加气混凝土砌块建筑构造电子版图集内容节选







03J104蒸压加气混凝土砌块建筑构造电子版图集相关内容小编就为大家介绍到这里了,更多pdf格式免费图集资料下载,敬请关注东坡下载站!

96K150-2圆伞型风帽图集pdf格式高清版
Fortran95程序设计pdf免费完整扫描版
编写可读代码的艺术(中文版带书签)pdf格式高
苏东坡的故事全集2015 免费版 【doc 精选版
计算机网络基础(第五版)pdf完整高清版







GB50016-2014建筑设计防火规范pdf格式免费版
python基础教程中文高清pdf【第二版】
疯狂android讲义第3版pdf高清扫描版【中文版
11G101新版全套图集pdf格式最新整理版【完整
13J811-1建筑设计防火规范图示(超清版)pdf格