本节内容小编为大家精选带来的是pdf格式第二册高清免费版新12G04钢筋混凝土过梁图集(简称新12g04图集),本pdf格式免费版电子图集共有99页,如果你需要一份这样的“新12g04图集免费下载”资料的话,点击本文下方的下载地址进行下载即可。
温馨提示:
本文档为pdf格式,因此需确保在阅读之前你已经安装了pdf阅读器,如果尚未安装阅读器,建议下载福昕pdf阅读器或其他PDF阅读器,进行安装后阅读。

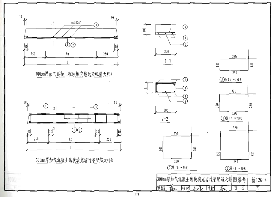
新12G04钢筋混凝土过梁图集(高清版)内容截图






新12G04钢筋混凝土过梁图集(第二册高清版)相关内容小编就为大家介绍到这里了,更多pdf格式免费图集资料下载,敬请关注东坡下载站!

图解HTTPepub格式【完整高清电子版】
Bootstrap实战(中文版)免费清晰版电子书
智取程序员面试pdf格式【高清电子版】
XML基础教程(第二版)完整扫描版
L02J101墙身配件图集pdf免费版【13系列山东







GB50016-2014建筑设计防火规范pdf格式免费版
05J909/07G120工程做法完整图集(高清无水印
Spring MVC学习指南pdf高清扫描版
疯狂android讲义第3版pdf高清扫描版【中文版