这是一份给水排水专业图集——05SS903民用建筑工程设计互提资料深度及图样(以下简称为05ss903图集)。该05ss903图集为pdf格式电子版,图集内容完整,共有74页,字迹清晰,无水印,如果你需要一份05ss903图集免费下载资料,那么该图集无疑是你的不二之选,有需要的朋友快来下载吧!
05ss903图集内容简介
本图集是根据国家现行设计深度规定,选择一栋民用建筑工程实例编制了给水排水专业各设计阶段互提资料的深度要求及图样。图集采用文字、图表及图示的方式,用于直观地指导设计中专业间互提资料的工作。
05ss903图集目录
1 目录、编制说明
目录1-1
编制说明1-3
2 方案设计
给排水专业接收建筑专业资料2-1
给排水专业提供、接收资料2-2
给排水专业接收其他专业资料2-3
方案设计工程示例-给排水专业接收图样
简要设计说明(建→水)2-4
3初步设计
给排水专业接收建筑专业资料(第一时段、第二时段)3-1
给排水专业接收建筑专业资料(第二时段)3-2
初步设计工程示例-给排水专业接收建筑专业图样(第二时段)
总平面图(建→水)3-3
地下三层平面图(人防)(建→水)3-4
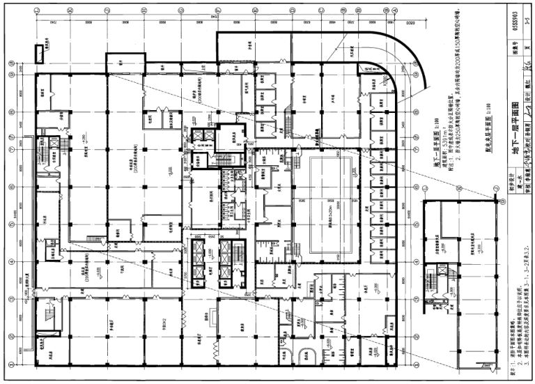
地下一层平面图(建→水)3-5
首层平面图(建→水)3-6
首层消防平面图(建→水)3-7
十三、十五、十六层平面图(建→水)3-8
屋顶平面图(建→水)3-9
(L)-(D)轴立面图(建→水)3-10
1-1剖面图(建→水)3-11
给排水专业提供资料(第二时段)3-12
初步设计工程示例-给排水专业提供图样(第二时段)
地下三层平面图(人防)(水→各专业)3-13
地下一层平面图(水→各专业)3-14
首层平面图(水→建、电)3-15
十三、十五、十六层平面图(水→建、电)3-16
屋顶平面图(水→各专业)3-17
给排水专业接收结构、暖通、电气专业资料(第二时段)3-18
初步设计工程示例-给排水专业接收结构、暖通、电气专业图样(第二时段)
基础结构平面图(结→水)3-19
地下一层结构平面图(结→水)3-20
首层结构平面图(结→水)3-21
十三、十五、十六层结构平面图(结→水)3-22
地下一层平面图(暖→水)3-23
地下三层平面图(人防)(电→水)3-24
地下一层平面图(电→水)3-25
首层平面图(电→水)3-26
4 施工图设计
给排水专业接收建筑专业资料(第一时段、第二时段)4-1
给排水专业接收建筑专业资料(第二时段)4-2
给排水专业接收建筑专业资料(第二时段)4-3
施工图工程示例-给排水专业接收建筑专业图样(第二时段)
地下三层平面图(人防)(建→水)4-4
地下一层平面图(建→水)4-5
首层平面图(建→水)4-6
首层消防平面图(建→水)4-7
十三、十五、十六层平面图(建→水)4-8
屋顶平面图(建→水)4-9
(L)-(D)轴立面图(建→水)4-10
1-1剖面图(建→水)4-11
给排水专业给建筑、结构专业提供资料(第二时段)4-12
给排水专业给结构、暖通、电气专业提供资料(第二时段)4-13
施工图工程示例-给排水专业提供图样(第二时段)
地下三层平面图(人防)(水→建、结)4-14
地下三层平面图(人防)(水→暖、电)4-15
泵房、水池(水→建、结)4-16
泵房、水池剖面图(水→建、结)4-17
泵房、水池(水→电)4-18
中水站(水→建、结)4-19
地下一层平面图(水→建、结)4-20
地下一层平面图(水→暖、电)4-21
热交换站(水→建、结)4-22
热交换站(水→暖、电)4-23
首层平面图(水→建)4-24
首层平面图(水→电)4-25
十三、十五、十六层平面图(水→建、电)4-26
冷却塔(水→各专业)4-27
卫生间平面图(水→建)4-28
给排水专业接收结构、暖通、电气专业资料(第二时段)4-29
给排水专业接收建筑、结构专业资料(第三时段)4-30
施工图工程示例-给排水专业接收结构、暖通、电气专业图样(第二时段)
地下一层结构平面图(结→水)4-31
地下一层平面图(暖→水)4-32
地下三层平面图(人防)(电→水)4-33
地下一层平面图(电→水)4-34
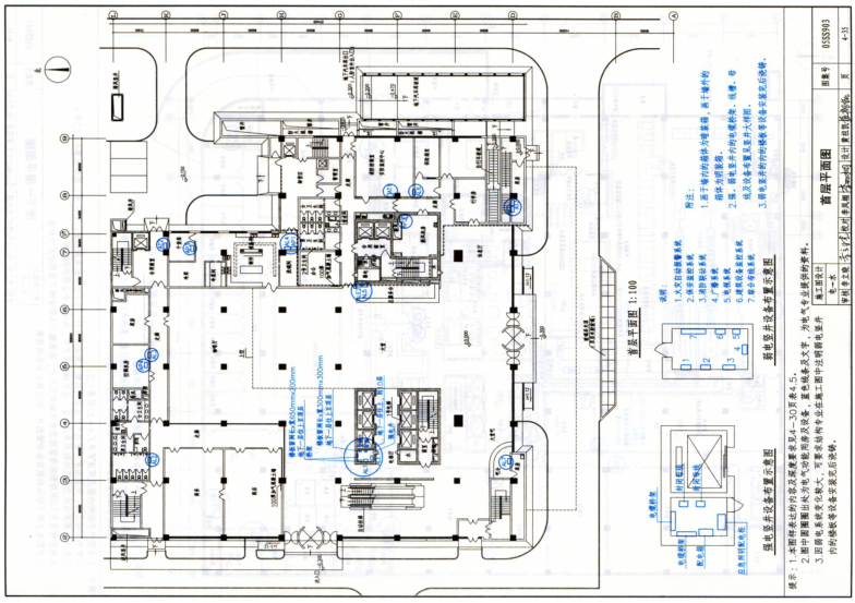
首层平面图(电→水)4-35
十三、十五、十六层平面图(电→水)4-36
十三、十五、十六层消防平面图(电→水)4-37
施工图工程示例-给排水专业接收图样(第三时段)
D型客房详图(建→水)4-38
1号卫生间首层平面图(建→水)4-39
游泳池池底结构平面图及详图(结→水)4-40
05ss903图集样张





与孩子一起学编程(中文版)pdf完整高清版【无
FX2N-2AD特殊功能模块用户指南(中文版)pdf格
在编教师辞职报告范文doc格式免费版【在编教
05SJ918-1传统特色小城镇住宅(徽州地区)图集
工业与民用配电设计手册(第三版)pdf格式免费







GB50016-2014建筑设计防火规范pdf格式免费版
05J909/07G120工程做法完整图集(高清无水印
疯狂android讲义第3版pdf高清扫描版【中文版